La Fundación Santa Fe de Bogotá es una entidad privada de carácter social cuya misión es liderar e influir positivamente en el sector de la salud, y contribuir al bienestar de los individuos y de las comunidades. Desde hace más de 50 años, la Fundación trabaja constantemente por dejar una huella social y construir valor superior para los pacientes, familias, visitantes y colaboradores.
Desde su creación, el 2 de noviembre de 1972, sus Fundadores – la señora Gloria González de Esguerra, Pedro Gómez Valderrama y los doctores Alfonso Esguerra Fajardo, Enrique Urdaneta Holguín, Alejandro Jiménez Arango y José Félix Patiño Restrepo – la concibieron como una organización privada, sin dueños ni accionistas, que reinvirtiera la totalidad de sus utilidades en el desarrollo de su equipo humano y de su infraestructura física y tecnológica.
La Fundación Santa Fe de Bogotá, en su permanente proceso de creación, crecimiento e innovación, inauguró en noviembre de 2016 la expansión del Hospital Universitario, una edificación de 12 pisos que se alza en la esquina de la Avenida 9ª con calle 119, al norte de Bogotá, Colombia. Con la expansión se incrementa la capacidad de hospitalización con 148 nuevas camas, se amplían los servicios ambulatorios y se logra mejorar la experiencia de los pacientes los familiares, cuidadores y visitantes garantizándoles su confort y un inmejorable servicio cálido, humano y de excelencia en la atención.
En la rica historia de la Fundación Santa Fe de Bogotá, el desarrollo de su infraestructura hospitalaria y su propósito de crear valor superior durante estos 50 años, se ha constituido en marca indeleble en la evolución de la atención hospitalaria en Colombia y en América Latina:
Justificación del proyecto de expansión
Varios hechos condujeron a que los directivos de la Fundación Santa Fe de Bogotá decidieran proyectar una expansión importante que permitiera cumplir entre otros, con los siguientes objetivos:
Ampliar la infraestructura, para poder satisfacer la demanda creciente de servicios hospitalarios en las diferentes especialidades.
Adaptar sus instalaciones y procedimientos para satisfacer los cambios y actualizaciones en las normativas pertinentes.
Brindar a la comunidad médica y científica, un ambiente dotado con las mejores ayudas tecnológicas, para poder ejercer de mejor manera sus actividades asistenciales y de investigación.
Ofrecer a la comunidad un Hospital incluyente, con la más alta calidad ética, humana, científica y tecnológica que les pueda dar la oportunidad de recibir servicios con la mejor calidad.
Adaptar el Hospital para ofrecer la mejor atención para nuevas patologías y necesidades de los pacientes.
Como se inicia el proyecto de expansión
El sueño del proyecto de expansión se puso en marcha en el año 2010, iniciando con la contratación de la Gerencia Integral del Proyecto con la firma especializada PAYC, con el objetivo de gestionar la articulación del equipo multidisciplinario compuesto por personal asistencial y administrativo, constructores, aliados estratégicos, asesores especializados, diseñadores, proveedores de tecnologías, etc.
Luego de una cuidadosa selección, el diseño general del proyecto fue otorgado al reconocido Arquitecto Giancarlo Mazzanti y su equipo.
Una vez establecida la magnitud y el alcance del proyecto, se trazaron varias estrategias para lograr que el proyecto efectivamente colmara las expectativas y cumpliera realmente con las necesidades del país, de la ciudad, del sector, de los profesionales de la salud, pero sobre todo de la comunidad.
En este contexto, además de los estudios de mercadeo e impacto, se consideró muy importante involucrar en los procesos de diseño a todos los actores que finalmente van a ser los usuarios de las nuevas instalaciones. Fue para ello que se diseñaron encuestas dirigidas a pacientes, familiares, visitantes y colaboradores. Ver figuras 1.


Además de esto, se construyeron maquetas a escala real de varios servicios importantes contemplados en el proyecto, tales como unidad neonatal, habitaciones, UCIs, etc. Ver figura 2. Estas maquetas fueron visitadas y calificadas por pacientes, familias, colaboradores, visitantes, proveedores, aliados estratégicos y personal interno, quienes evaluaron los espacios, materiales, mobiliario, tecnología, facilidades de desplazamiento, facilidades para mantenimiento, etc. Un hecho que refleja la importancia de este concepto, es el diseño de las piletas de aseo, que fueron implementadas atendiendo las indicaciones dadas por el personal operativo de aseo y limpieza. Ver figura 3.


Como concepto importante, durante toda la planificación del proyecto se tuvieron muy presentes estándares ambientales y de calidad exigidos por las acreditaciones nacionales e internacionales como ICONTEC, JCI, LEED. Además, se realizaron referenciaciones dentro y fuera de Colombia para adoptar las mejores prácticas científicas, clínicas y de infraestructura que se usaban en los mejores hospitales del mundo.
Filosofía del proyecto
Desde que fue concebido, siempre se tuvo muy claro que la esencia del proyecto era su orientación al paciente, familia, visitantes y colaboradores, con un servicio cálido y humano. Que tuviera una alta calidad en la planificación. Que contara con diseños de clase mundial, flexibles y adaptativos. Que tuviera un respeto por la imagen fundacional. Que fuera centrado en la atención a la persona. Que optimizara de la mejor manera, el uso de la luz solar, como fuente de iluminación, pero sobre todo como elemento para mejorar la experiencia del paciente. Que estuviera muy comprometido con el medio ambiente y que tuviera un enfoque de bienestar para colaboradores y estudiantes.
Otro de los aspectos relevantes en la concepción del proyecto es que le permitiera a la Fundación Santa Fe de Bogotá crecer de manera segura y sostenible, y convertirse en un apoyo fundamental para su proyección hacia el futuro.
Teniendo presentes estos y muchos otros aspectos, se determinó cubrir necesidades específicas en cuanto a ampliación o creación de servicios asistenciales tales como Hospitalización, Unidad de Cuidados Intensivos Adultos, Unidad Neonatal, Unidad de Cuidados Intermedios, Unidad de Cuidados Intensivos Pediátricos, Unidad Obstétrica, Unidad de Cuidados Quirúrgicos, Neurología, Chequeo ejecutivo, Servicios Ambulatorios, entre otros.
De igual manera se decidió ampliar o crear algunas áreas o servicios no asistenciales como auditorio, áreas complementarias, zonas de bienestar, vestieres, cafeterías, locales comerciales concesionables, parqueaderos, espacios contemplativos, áreas administrativas, salas de bienvenida, espacios para manejo de cadáveres, depósitos, bodegas, etc.
Una de las principales directrices aplicada en prácticamente todos los ambientes del proyecto, es procurar la implementación solariums con jardines contemplativos interiores, para convertir este diseño en pionero de esta tendencia para el futuro de las construcciones hospitalarias en Colombia.
Reafirmando el compromiso con la comunidad, se define generar una plazoleta publica de 2000 metros cuadrados y andenes de 9 metros de ancho, para disfrute de los transeúntes. En este mismo propósito, se decidió que el proyecto permita que el público en general pueda utilizarlo para circular libremente entre las avenidas 7ª y 9ª, dos vías muy importantes de la ciudad.
Como aspecto imprescindible en todos los criterios de diseño, está el mantener la imagen institucional, utilizando formas y materiales iguales al edificio tradicional, es decir ladrillo a la vista y granito color salmón.
Circulaciones
Los servicios de operación del hospital que involucran materiales o procedimientos potencialmente contaminantes se ubicaron en todos los pisos al centro del edificio. Allí se instalaron los ascensores de residuos, cuartos de ropa sucia, piletas de aseo, cuartos de almacenamiento temporal de residuos, cuartos sucios de enfermería, así como los cuartos eléctricos y de tecnología.
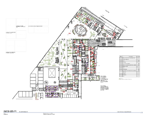
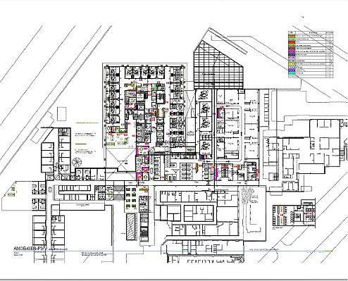
En cuanto a la circulación de pacientes, personal asistencial, visitantes, insumos y alimentos, residuos, emergencias, se hizo un detallado mapa de flujos para facilitar la operación, evitar contaminaciones cruzadas y cumplir la normativa pertinente. Ver figuras 4 y5.
La implementación de un sistema de flujos independientes permitirá regular la eficiencia en tiempos y movimientos, logrando optimizar todas las variables dentro del funcionamiento operativo del Hospital.


Generalidades
La Fachada conserva el ladrillo del resto de la institución, en donde semeja una doble piel o cortina tejida en ladrillo flotante y envolvente, con movimiento al viento y permite el ingreso de luz solar. Con esta fachada se mitigan los rayos solares, pero sin disminuir la claridad, lo cual permite visualizar el paisaje exterior, con lo que se logra favorecer los procesos de recuperación de los pacientes, se acortan las estadías, se disminuye la medicación y se mejora la experiencia del paciente.
Es importante resaltar que esta decisión arquitectónica mitiga también el impacto del edifico sobre el entorno, gracias a la doble piel, disminuyendo la afectación a los vecinos, dado que la construcción está inmersa en una zona residencial de alta densidad poblacional. Ver figuras 6,7 y 8.



Las estaciones de enfermería fueron diseñadas con intervención de las enfermeras, teniendo muy presente que involucraran conceptos incluyentes para pacientes con movilidad reducida. Ver figura 9.

En pasillos asistenciales y otras áreas de circulación, se dejaron espacios específicos para albergar elementos que pudieran obstaculizar el tráfico, tales como carros de paro, cilindros de oxígeno y camillas.
Así mismo se dejaron en cada nivel asistencial, depósitos para almacenamiento organizado de linos y ropa para pacientes aislados, logrando de esta manera despejar los pasillos, evitando así posibles accidentes o eventos adversos durante el traslado de los pacientes. Ver figura 10.



Un detalle importante encaminado al confort de los pacientes fue el diseño del alumbrado de pasillos, colocando iluminación lateral para mejorar la experiencia de un paciente mientras es trasladado en camilla.
Las habitaciones cuentan con sistemas integrados de domotización para que el mismo paciente o sus familiares puedan tener control de su espacio, manejando la cama, cortinas, temperatura, televisor, llamado de enfermería e iluminación
En cuanto a Arquitectura interior, se utilizaron materiales grado hospitalario de fácil limpieza y desinfección, tales como acero inoxidable, vidrio laminado de seguridad, Corian® y otros. El mobiliario utilizado es también de grado hospitalario, logrando una perfecta combinación entre seguridad y confort para los pacientes y familiares.
Se construyeron jardines interiores en los pisos de hospitalización 9 al 12, utilizando especies nativas libres de polen que no atraigan insectos u otras especies que puedan ser nocivas para pacientes y visitantes. Para lograrlo, se organizó un comité con especialistas en temas médicos, entomología, paisajismo y silvicultura.
En cuanto a tecnología de infraestructura física, se utilizaron equipos y conceptos de vanguardia, enmarcados dentro de la certificación LEED, tales como:
Sistema de envío neumático para medicamentos
BMS para control de variables físicas del edificio
Sistema de reutilización de aguas lluvias
Central de residuos de 400 metros cuadrados, con sistema de compactación
Central de gases medicinales, entre otros.
Algunos otros aspectos que vale la pena resaltar en cuanto a conceptos de diseño e implementación arquitectónica fueron:
Pinturas de fácil limpieza y desinfección.
Pisos vinílicos y de granito.
Puertas fenólicas.
Esquinas redondeadas para evitar su deterioro y disminuir costos de mantenimiento.
Equipos industriales de soporte. Plantas eléctricas, Bombas hidráulicas, Sistemas contra incendios, Tanques de agua, etc.
Características del proyecto
Desde su construcción original, el edificio de la Fundación Santa Fe de Bogotá tuvo una distribución principalmente horizontal, pero manteniendo algunos predios aledaños pensando en ampliaciones futuras.
Este proyecto de expansión se desarrolló en uno de esos predios, con una construcción vertical de 12 niveles, 1 piso técnico, 3 sótanos y un helipuerto.
Detalle de los niveles


Sótano 3:
Parqueaderos para 86 vehículos y 17 motocicletas
Talleres de mantenimiento
Áreas de vestidores para personal interno
Bodega de almacenamiento
Oficinas de empresas de outsourcing

Sótano 2
Parqueaderos para 88 vehículos y 21 motocicletas
Central de gases medicinales
Central de seguridad CCTV
Morgue
Vestier masculino empleados




Sótano 1
Parqueaderos para 33 vehículos, 10 motocicletas, 30 bicicletas, 2 ambulancias, 9 taxis, 4 vehículos de carga, 8 para personas con movilidad reducida, 4 vehículos eléctricos.
Central de residuos
Central de almacenamiento de linos
Cafetería de empleados
Vestier femenino empleados
Nivel 1
Conexión con el primer piso del Hospital tradicional
Gran Lobby de ingreso
Cafetería
Servicios ambulatorios (cardiología, neumología, chequeo ejecutivo, etc)




Nivel 2
Conexión con el segundo piso del Hospital tradicional
Restaurante
Farmacia
Locales comerciales concesionados
Sala de reflexión
Plazoleta verde abierta a la comunidad




Nivel 3 – Unidad de Cuidados Intensivos
20 módulos para Unidad de Cuidados Intensivos Quirúrgicos



Nivel 4 – Unidad de Cuidados Intensivos
20 módulos para Unidad de Cuidados Intensivos Médicos


Nivel 5 – Ginecoobstetricia
6 Salas de TPR (Trabajo de Parto, Parto y Recuperación Inmediata)
2 Unidades para alto riesgo obstétrico
2 salas para cesárea
4 camas para recuperación
Farmacia satélite exclusiva

Nivel 6 – UCI Neonatal, UCI Pediátrico
11 habitaciones de UCI neonatal
11 módulos independientes de UCI pediátrico
Espacio para Madres (24 horas)


Nivel 7
Servicio de Neurología
Polisomnografía
Auditorio con capacidad para 300 personas
Área para bienestar de médicos, con espacios de coworking, descanso, entretenimiento y cafetería.

Mezzanine – Piso técnico
Equipos de Aire Acondicionado y Ventilación Mecánica.
Nivel 8 – Unidad de Cuidado Intermedio Adulto
18 habitaciones de UCI intermedio para adultos.
Habitaciones de aislamiento de presión positiva y negativa.

Nivel 9 – Nivel 12: Hospitalización
59 habitaciones
Jardines contemplativos interiores
Ficha Técnica
Obra: Expansión del Hospital Universitario Fundación Santa Fe de Bogotá
Ubicación: Av. 9 y calle 119, Bogotá, Colombia
Inicio de obra: 2012
Inauguración: 2016
Superficie cubierta: 40.000 m2 (12 pisos, 3 sótanos, 1 piso técnico, 1 helipuerto, 13 ascensores, 148 camas (32 m2), 1 auditorio para 300 personas, 207 parqueaderos para vehículos, 48 parqueaderos pata motocicletas, 30 parqueaderos para bicicletas, 4 parqueaderos para vehículos eléctricos).
Equipo humano y profesional
Plan Médico Arquitectónico: Fundación Santa Fe de Bogotá
Gerencia e Interventoría: PAYC
Diseños Arquitectónicos: Equipo Mazzanti
Consultoría Internacional de Master Plan: TK&A
Diseños Estructurales: PCA-PyP
Diseños Hidrosanitarios: Hidroobras
Diseños Sistemas de AA-Vm: Álvaro Tapias
Diseños Seguridad Humana: AGR
Diseños TIC: SM&A
Diseños Eléctricos: SM&A
Diseños de Iluminación: Carmenza Henao
Diseño Interiorismo y Distribución: Catalina Iannini
Diseño Sistema de Envío Neumático: ALEAR
Diseño de Sostenibilidad Eléctrica: Soluciones Sostenibles
Diseño Sistemas de Gases Medicinales: Linde Colombia
Referencias
www.fsfb.org.co/wps/portal/fsfb/PortalC4/home
Boletín Institucional Fundación Santa Fe de Bogotá. Edición especial. Boletín No. 23.
Informe Proyecto Ampliación Hospital Universitario – Entrevista pacientes – Centro de Innovación en salud FSFB.
Memorias del Proyecto – Ampliación Hospital Universitario Fundación Santa Fe, Bogotá, Colombia.
https://anmdecolombia.org.co/el-nacimiento-de-la-fundacion-santa-fe-de-bogota/
Subdirección de Ingeniería de la Fundación Santa Fe de Bogotá. Cortesía de Arquitecta Pebles Fragozo Rodelo.
Archivo fotográfico de la Fundación Santa Fé de Bogotá – Gestión de Infraestructura Hospitalaria.
Subdirección de Servicio de la Fundación Santa Fe de Bogotá.
https://fundacionsantafedebogota.org/



GIPHY App Key not set. Please check settings