Las Unidades de Cuidados Intensivos son ambientes hospitalarios destinados a la atención de pacientes en condiciones clínicas graves y de riesgo, que requieren asistencia médica, radiológica, de enfermería y de laboratorio ininterrumpida.
Surgen de la necesidad logística de centralizar a los pacientes críticos y la tecnología necesaria para su atención en un solo ambiente, con la máxima eficiencia (01) y demandan espacio físico específico, recursos humanos especializados e instrumental tecnológico avanzado (02). Las primeras UCI eran “habitaciones grandes, rectangulares, vigiladas por un centro de enfermería, con camas alrededor”, cuya configuración básica evolucionó hacia dos opciones principales: “sala única, englobada en un área general con total visibilidad; o sala subdividida, con múltiples lechos aislados y bajo visibilidad parcial” (03, 01) (fig.1). Actualmente, el modelo de UCI con habitaciones privadas se está adoptando cada vez más, principalmente en hospitales privados y de alta gama, no siendo común en los hospitales públicos, excepto las habitaciones para aislamiento de pacientes.
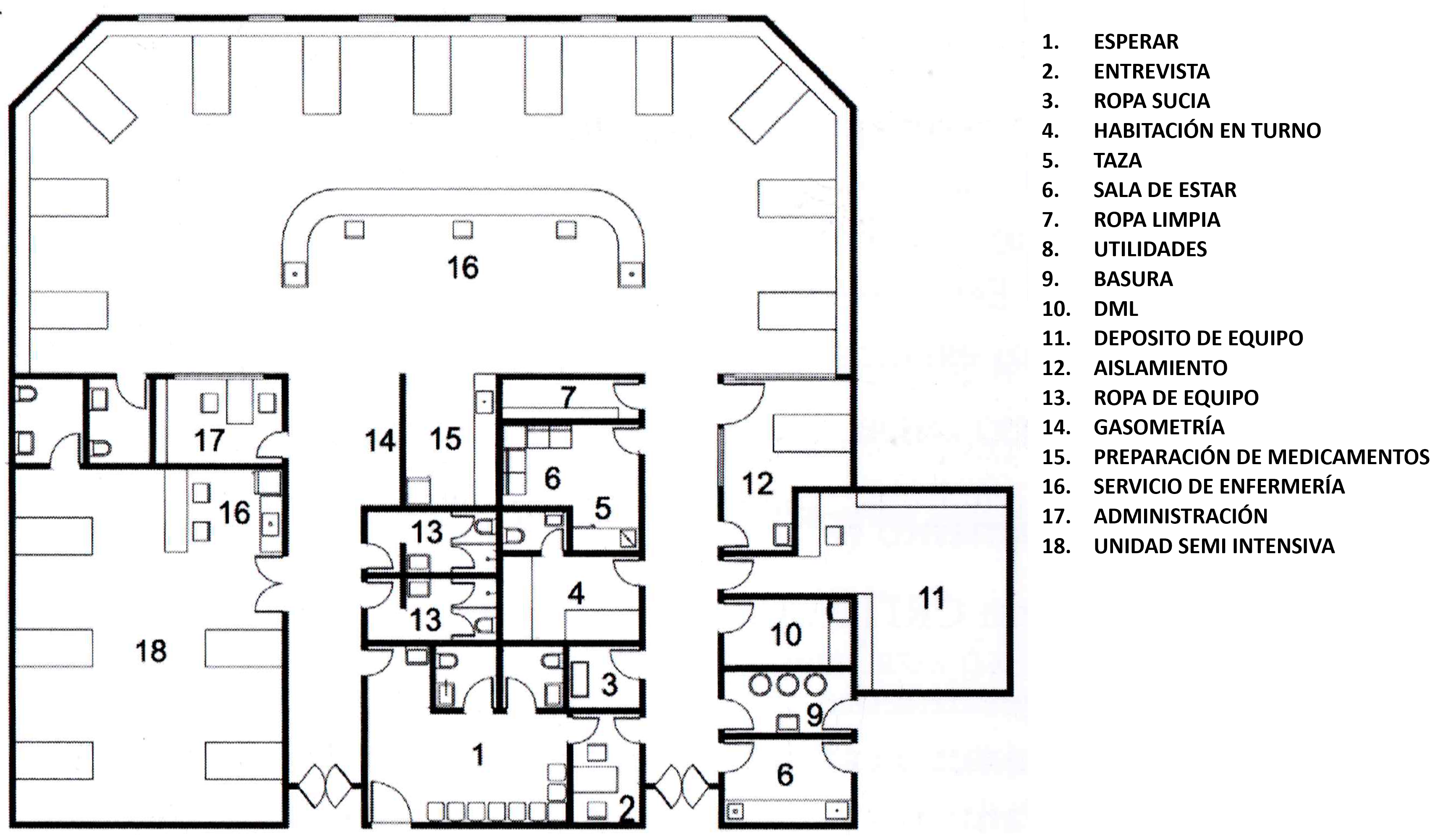
La evolución de la medicina y del equipamiento médico trajo consigo la implantación de UTI especializadas: coronaria, respiratoria, geriatría, neurológica, traumatología, quemados, quirúrgica, neonatal y pediátrica (01). A partir de esa especialización surgen las Unidades de Cuidados Intensivos – CTI (Fig. 2), un conjunto de UCI especializadas, ubicadas en estrecha proximidad con el fin de optimizar servicios y recursos (04). No todos los hospitales cuentan con todos los tipos de cuidados intensivos, ya que las UCI deben atender, en tamaño, número y tipo, al programa funcional de cada hospital (05).
En Brasil, la Agencia Nacional de Vigilancia Sanitaria (ANVISA) determina la existencia de UCI en hospitales de tercer y segundo nivel con capacidad igual o superior a 100 camas, así como en hospitales especializados, además de la obligación de camas de cuidados intensivos neonatales en todo el hospital que atiende a embarazadas de alto riesgo (06).


Aspectos que influyen en la percepción
La humanización del edificio hospitalario es un tema recurrente en los estudios académicos y técnicos de las últimas casi tres décadas. Asimismo, el concepto de “Ambiencia” (término original en francés: “Ambiance”) también es objeto de estudios por parte de investigadores en áreas como la arquitectura y la psicología ambiental, enfocados en edificios de salud, principalmente relacionados con aspectos espaciales y constructivos. Actualmente, las investigaciones sobre la ambiencia en las unidades de salud tienden a centrarse principalmente en la aprehensión de aspectos relacionados con la subjetividad de los usuarios y las posibilidades de su interferencia en la comprensión, además de las reacciones de interacción entre los individuos y el espacio construido (07).
En el contexto de los edificios de salud, el concepto de Ambiencia trae consigo la posibilidad de ayudar a la producción de proyectos que consideren el espacio no solo como un entorno físico, sino también estético, psicológico y estructurado, con el valor otorgado por cada individuo que trabaja. en él permanece o realiza actividades. Los proyectos arquitectónicos elaborados según los parámetros establecidos en los estudios de ambiente consideran no solo los aspectos formales, estéticos y normativos, sino que también evalúan y consideran las condiciones ambientales que pueden ser percibidas por los usuarios. También considera la interacción de estos usuarios con los espacios que proyectan a través de sus sentidos, influidos por aspectos subjetivos, relacionados con las sensaciones que les transmite el ambiente y que influirán en sus acciones y reacciones en relación con dicho espacio (07).
El ambiente de la UCI suele tener características específicas, como ruido, olores, luz intensa, ventanas cerradas y una temperatura generalmente fría mantenida constante por el aire acondicionado central. Aunque la UCI es el lugar ideal para la atención de pacientes agudos graves recuperables, es percibida por los pacientes y sus familias, la mayoría de las veces, como uno de los ambientes más agresivos, tensos y traumatizantes del hospital (02). La conformación física de este tipo de ambientes, combinada con la incertidumbre sobre la supervivencia o el éxito del proceso de recuperación, influye en la percepción negativa de los espacios.
Este tipo de hospitalización genera cambios en las percepciones subjetivas y psicológicas del individuo, provocando ansiedad, angustia, estrés, incertidumbre y miedo. Entre las principales causas percibidas por los pacientes, además de los factores ambientales y los múltiples procedimientos invasivos, se encuentran la separación y pérdida del contacto familiar, la noción del paso del tiempo, la falta de privacidad, los horarios de visita restringidos, provocando sentimientos de ruptura, impotencia física/mental y aislamiento (08). Estas emociones son potenciadas por situaciones extremas de la enfermedad y el riesgo de muerte (09.10).
La ambiencia de las unidades de cuidados intensivos debe ser diseñada para abarcar no solo el cuidado, sino también el confort, la apreciación de la subjetividad y de la individualidad de cada paciente, además de brindar condiciones ideales de trabajo para los profesionales involucrados en el cuidado (11). Orientar el proyecto para observar la armonía entre los componentes físicos, sociales y subjetivos de los ambientes es fundamental en el proceso de recuperación de la salud.
La “UCI humanizada” y la presencia del acompañante
Culturalmente, en las UCI de todo el mundo practican horarios de visita restringidos, respaldados por teorías de que una mayor circulación de personas podría perjudicar los cuidados críticos que se brindan allí, especialmente mayores riesgos de infección para el paciente. Sin embargo, esta realidad ha ido cambiando, avalada por nuevos estudios que apuntan lo contrario: un mayor contacto entre el paciente y su familia trae beneficios al paciente, contribuyendo a su recuperación.
Por excelencia, las personas tienen a la familia como principal recurso de apoyo en momentos de dificultad. En el caso de pacientes hospitalizados, la presencia de la familia es un apoyo muy importante (08) que genera, además de confort emocional y seguridad, condiciones para ayudar al tratamiento y recuperación del paciente.
Práctica que ha sido adoptada en diferentes países, ampliar el horario de visitas contribuye a reducir el estrés, promover una mejor comunicación, proximidad, seguridad y apoyo a los pacientes, aumentando su satisfacción y la de sus familias (12, 13,14).
Al reconocer el papel de los familiares, el equipo de salud pasa a tener un importante aliado, actuando como agente activo en el cuidado, pudiendo colaborar en algunos cuidados -higiene personal, administración de las comidas- si las condiciones clínicas lo permiten y con supervisión de profesionales (09). La familia actúa como un recurso importante, contribuyendo al reconocimiento y reafirmación de la individualidad del paciente y, en algunos casos, recuperando su propia participación en el tratamiento, contribuyendo directamente al cuidado centrado en el paciente (14).
A partir de esta premisa, se deben desarrollar políticas con los servicios de salud para que la ampliación del horario de visitas sea una realidad. Entre las prácticas, la sensibilización y capacitación de los equipos de atención sobre la presencia de familiares al lado de la cama (14), conocimientos y acciones relacionadas con los visitantes (13), así como las adaptaciones físicas para ese entorno para permitir las interacciones sociales.
El ambiente en la capacitación y adaptaciones de las UCI
La ambiencia hospitalaria, para asistir efectivamente en la restauración de la salud, requiere que la planificación y el diseño consideren todos los aspectos que influyen en la percepción de sus usuarios. Específicamente en las UCI, el concepto de proyectos ha ido cambiando a lo largo de los años, principalmente dirigidos a mejorar la estructura física enfocados en equipamiento tecnológico. Aun así, los entornos altamente tecnológicos y costosos no garantizan la calidad de la atención obtenida, siendo muy recomendable combinar la calificación de los entornos con los aspectos subjetivos que influyen en la percepción y sensaciones generadas en sus usuarios.
En ese sentido, cuanto más acogedores sean los ambientes, minimizando las causas comunes de malestar y estrés generados por las condiciones físicas y brindando condiciones para la presencia y participación de los familiares, más propicio será ese ambiente para la recuperación de la salud.
La configuración de las UCI organizadas en habitaciones privadas ha sido identificada como adecuada para reducir los niveles de estrés y aumentar el nivel de satisfacción del usuario (15), siendo común en hospitales privados de alta gama (Figs. 3 y 4). Sin embargo, los hospitales con menos recursos y redes públicas de salud tienen más dificultades para utilizar este modelo, debido a limitaciones financieras, administrativas o políticas. Estas limitaciones, sin embargo, no impiden que se cuide el tratamiento de los ambientes en aspectos relacionados con la iluminación, la temperatura, el ruido y dispositivos que ayuden a la privacidad y comodidad de los pacientes y el acceso a sus familias.


Acciones como atenuar las luces utilizando sistemas de iluminación adecuados, reducir el nivel de ruido mediante la gestión de alarmas y concienciar a los profesionales implicados en la atención pueden ayudar a mejorar la calidad del sueño de los pacientes. El uso de dispositivos de protección visual como mamparas o cortinas en las UCI abiertas y vestir a los pacientes estables mejora la percepción de privacidad y comodidad. El uso de elementos como música ambiental, acceso a televisores, teléfonos y equipos de cómputo, cuando sea posible, minimiza la sensación de desplazamiento, soledad y descontrol (08).


Si bien parte del agotamiento emocional experimentado en las UCI es independiente de las instalaciones físicas, estas son fundamentales para suavizar la experiencia de los usuarios, cuando brindan atributos ambientales y otras formas de distracción positiva, además del apoyo social y control del ambiente. El espacio físico diseñado puede tanto contribuir a minimizar situaciones de estrés y malestar, como puede influir en una experiencia hospitalaria negativa para sus usuarios (16).
El cuadro 1 enumera los atributos físicos que están directamente relacionados con la percepción del ambiente en las Unidades de Cuidados Intensivos, que se pueden observar fácilmente en la composición del diseño de estos ambientes:
| Atributos físicos de los ambientes | Relación con la percepción de los usuarios |
|
Acceso al exterior y/o vistas a la naturaleza |
· Reducción de la depresión;
· Mayor satisfacción entre los profesionales de la salud; · Mayor satisfacción entre los pacientes; · Menos estrés para los pacientes; · Menos estrés para los profesionales de la salud; · Estancia hospitalaria más corta
|
|
Habitaciones privadas / camas individuales |
· Mayor eficiencia en el trabajo;
· Mayor sentido de privacidad y confidencialidad; · Mayor satisfacción entre los profesionales de la salud; · Mayor satisfacción entre los pacientes; · Mayor apoyo social; · Mejor comunicación entre pacientes y familiares; · Dormir mejor; · Menos estrés para los pacientes; · Menos estrés para los profesionales de la salud; · Reducción de errores médicos; · Reducción de infecciones nosocomiales; · Caídas reducidas. |
|
Áreas dedicadas para la familia en la habitación de hospitalización |
· Depresión reducida
· Mayor sentido de privacidad y confidencialidad · Mayor sensación de seguridad y protección · Mayor satisfacción del paciente · Mayor apoyo social · Mejor comunicación entre pacientes y familias Menos estrés para los pacientes · Reducción de caídas
|
|
Superficies acústicas reductoras de ruído |
· Mayor eficiencia relacionada con el trabajo
· Mayor sentido de privacidad y confidencialidad · Mayor satisfacción entre los profesionales de la salud · Mayor satisfacción entre los pacientes; · Mejor comunicación entre pacientes y familiares; · Dormir mejor; · Menos estrés para los pacientes; · Menos estrés para los profesionales de la salud; · Reducción de errores médicos. |
|
Acceso a la luz natural |
· Reducción de la depresión;
· Mayor satisfacción entre los profesionales de la salud; · Mayor satisfacción entre los pacientes; · Dormir mejor; · Menos estrés para los pacientes; · Menos estrés para los profesionales de la salud; · Menor duración de la estancia.
|
|
Iluminación artificial adecuada (luz brillante de espectro completo) |
· Reducción de la depresión;
· Mayor eficiencia en el trabajo; · Mayor satisfacción entre los profesionales de la salud; · Mayor satisfacción entre los pacientes; · Dormir mejor; · Menos estrés para los pacientes; · Menos estrés para los profesionales de la salud; · Permanencia más corta; · Reducción de errores médicos; · Caídas reducidas. |
Cuadro 1. Atributos físicos que están directamente relacionados con la percepción del ambiente en las unidades de cuidados intensivos – Adaptado de Silveira y Fellipe (2019) (17)
La Unidad de Cuidados Intensivos está destinada a salvar vidas. Aún así, es un ambiente donde los pacientes críticamente enfermos enfrentan dolor, inseguridad y miedo, en condiciones ambientales comúnmente adversas. La humanización de estos ambientes se basa en el principio de que el paciente necesita ser observado con una visión global, que contemple sus necesidades físicas y emocionales.
El tratamiento dado a los aspectos físicos puede mitigar situaciones estresantes y contribuir a la recuperación del paciente, teniendo la arquitectura un papel primordial en este contexto, creando espacios humanizados y adecuados, ya no relacionados sólo con la terminalidad, sino vistos principalmente como ambientes de tratamiento y recuperación
REFERENCIAS
(01) Dalmasso. G. L. (2005). A relação entre espaço e saúde: uma contribuição da arquitetura para a humanização das unidades de TRATAMENTO INTENSIVO. Dissertação de Mestrado. Programa de Pós-graduação em Arquitetura – PROARQ-FAU-UFRJ. Rio de Janeiro – RJ.
(02) Chavaglia, S.R.R.; Borges, C.M.; Amaral, E.M.S.; Iwamoto, H.H.; Ohl, R.I.B. (2011). Ambiente do centro de terapia intensiva e o trabalho da equipe de enfermagem. Rev. Gaúcha Enferm., Porto Alegre (RS) dez;32(4):654-61. Disponível em: https://doi.org/10.1590/S1983-14472011000400003
(03) Tavares, B. (1974). Princípios de planejamento, organização e funcionalidade: temas de tratamento intensivo e choque. Rio de Janeiro, v. IV. 344 p.
(04) Ferrer, M. (2012). Manual da Arquitetura das Internações Hospitalares. 1a ed. Rio de Janeiro: Rio Books.
(05) AIA – American Institute of Architects. (2001). Guidelines for design and construction of hospital and health care facilities. Washington: AIA. p. 24-30.
(06) Brasil. Ministério da Saúde (BR), (1998). Agência Nacional de Vigilância Sanitária. Portaria nº 466/MS/SVS, de 04 de junho de 1998: estabelece o Regulamento Técnico para o Funcionamento dos Serviços de Tratamento Intensivo e sua respectiva classificação de acordo com o grau de complexidade, capacidade de atendimento e grau de risco inerente ao tipo de atendimento prestado. Brasília (DF).
(07) Silva, C.N. (2019). Por ambiências sensíveis nos lugares de nascer. Tese de Doutorado apresentada ao Programa de Pós-graduação em Arquitetura, Faculdade de Arquitetura e Urbanismo, da Universidade Federal do Rio de Janeiro. PROARQ/FAU/UFRJ. Disponível em: https://bvsms.saude.gov.br/bvs/tese/ambiencias_sensiveis_lugares_nascer.pdf
(08) Castro, E. S.; Rosero, E. V. (2015). Experiencia de estar hospitalizado en una unidad de cuidado intensivo coronario de Barranquilla. Av Enferm. 33(3):381-390. doi: http://dx.doi.org/10.15446/av.enferm.v33n3.41841
(09) Escudero, D.; Viña, l.; Calleja, C. (2014). Por una UCI de puertas abiertas, más confortable y humana. Es tiempo de cambio. Med Intensiva. 38(6):371-375.
(10) Vieira, C.A.; Maia, L.F.S. (2013). Assistência de enfermagem humanizada ao paciente em UTI. Revista Recien.; 3(9):17-22. São Paulo. SP Disponível em: file:///D:/Acad%C3%AAmico/doutorado/aadaih%202023/ambiencia%20-%20UTI/6+Claudir+Vieira.pdf
(11) Brasil. Ministério da Saúde. Secretaria de Atenção à Saúde. Núcleo Técnico da Política Nacional de Humanização. Ambiência / Ministério da Saúde, Secretaria de Atenção à Saúde, Núcleo Técnico da Política Nacional de Humanização. (2010). – 2. ed. – Brasília: Editora do Ministério da Saúde. 32 p. – (Série B. Textos Básicos de Saúde).
(12) Rosa, R.G.; Falavigna, M.; da Silva, D.B.; Santos, M.M.; Kochhann, R.; de Moura, R.M.; et al. (2019). Effect of flexible family visitation on delirium among patients in the intensive care unit: the ICU visits randomized clinical trial. JAMA. 322(3):216-228.
(13) Hartmann, S.P.; Faria, L.J.F.; Teixeira, C.; Santos, C.S.; Maurer, T.C.; Silva, D.B.; Rosa, R.G. (2019). A diferença entre sexos nos horários flexíveis de visitação na unidade de terapia intensiva. Rev Bras Ter Intensiva. 31(4):592-593.
(14) Eugênio, C.S.; Haack, T.S.R.; Teixeira, C.; Rosa, R.G.; Souza, E.N. (2022). Comparação entre as percepções de familiares e as de profissionais de saúde a respeito de um modelo de visitação flexível em uma unidade de terapia intensiva adulto: estudo transversal. Rev Bras Ter Intensiva. 34(3):374-379.
(15) McCuskey, M.; Harris, D.D.; White, R. (2008). Unidades de terapia intensiva neonatais abertas e unifamiliares: satisfação e estresse do cuidador. Meio Ambiente e Comportamento, 40 (2), 249-268. https://doi.org/10.1177/0013916507311551
(16) Cavalcanti, P. B.; Maçaneiro, C.; Postiglione, I.; Palma, J. M. N., & Eli, J. R. (2021). Reflexões sobre o planejamento de unidades de tratamento intensivo – UTIS – na perspectiva dos usuários. Gestão & Tecnologia De Projetos, 16(4), 135-153. https://doi.org/10.11606/gtp.v16i4.178547
(17) Silveira, B. B.; Felippe, M. (2019). Ambientes restauradores: conceitos e pesquisas em contextos de saúde / organizadoras, – Dados eletrônicos. – 1. ed. – Florianópolis: UFSC, 118 p.: gráfs., tabs.
IMAGENES:
Figura 1: (04) Ferrer, M. Manual da Arquitetura das Internações Hospitalares. (2012). 1a ed. Rio de Janeiro: Rio Books.
Figura 2: (04) Ferrer, M. Manual da Arquitetura das Internações Hospitalares. (2012). 1a ed. Rio de Janeiro: Rio Books.
Figura 3: (17) Disponível em: https://transetudo.com.br/publieditorial/hospital-da-unimed-inaugura-nova-uti-que-tem-ate-teto-solar
Figura 4: (18) Disponível em: https://www.oncologiamontesinai.com.br/unidade-de-terapia-intensiva/
Figura 5: (19) HCFMRP – Jornal da USP – 2022. Disponível em:
Imagem 6: (20) Fotografia de Fátima Holanda – SESA/CE. Disponível em: https://www.saude.ce.gov.br/2020/03/23/hospital-leonardo-da-vinci-comeca-a-receber-exclusivamente-pacientes-com-covid-19/
Cristiane N. Silva es arquitecta, Doctora en Arquitectura por la UFRJ, Especialista en Gestión de Redes de Salud por la Escuela Nacional de Salud Pública Sergio Arouca – ENSP / FIOCRUZ. Colaborador en Ambiente Hospitalario por el Ministerio de Sanidad. Coordinador Científico ABDEH – Regional Rio de Janeiro. Trabaja como Analista de Arquitectura e Ingeniería en la Secretaría Municipal de Salud de Rio de Janeiro – RJ.
Renata P. Freire es enfermera, sanitarista, Doctora en Salud Pública por la ENSP / FIOCRUZ. Maestría en Administración de Empresas. Especialista en Gestión Hospitalaria por la ENSP / FIOCRUZ. Actúa en la gestión de sistemas y servicios de salud. Actualmente actúa como auditora en servicios de salud en el Ministerio Público del Estado de Río de Janeiro y como profesora de políticas públicas de salud y gestión de sistemas en Pos-Graduado en arquitectura de hospitales y laboratorios del INBEC y Pos-Graduado en arquitectura de hospitales del Instituto de Investigación y Enseñanza Albert Einstein.



GIPHY App Key not set. Please check settings