Las residencias en salud de la Provincia de Buenos Aires son una modalidad formativa de posgrado intensiva, bajo la estrategia de trabajo y estudio, en escenarios reales de práctica.
Los/as residentes son profesionales en formación guiados y supervisados por referentes docentes, basándose en los programas provinciales elaborados para cada disciplina. La modalidad contractual es la de una beca de capacitación con dedicación exclusiva, que en el caso de arquitectura tiene una duración de 3 años.
En Arquitectura para la salud, el propósito es formar arquitectos/as con especialización en el campo de las salud e inserción en efectores de salud, con competencias para gestionar de modo integral los edificios y espacios para la salud, incorporando las necesidades y derechos de la población usuaria, insertándose en equipos interdisciplinarios y contribuyendo a la construcción del derecho a la salud.
El Hospital San Juan de Dios de La Plata, es una de las sedes hospitalarias de la Residencia de Arquitectura de la PBA que nació en el 2021 con 5 sedes y a la cual se incorporaron 3 sedes más en el año 2023, en diversas Regiones Sanitarias de la provincia.
El trabajo que presenta hoy la Residencia de Arquitectura del San Juan de Dios, fue elaborado en forma conjunta con los tres niveles de la residencia y en el marco de un trabajo interprofesional con los actores involucrados en la temática abordada.
Su formación teórica y empírica suma a la especificidad de su tarea la transversalidad del contacto estrecho con las otras disciplinas de los equipos de salud, logrando así una comprensión más profunda e integral de los temas de salud y su resolución arquitectónica.
Arq. Alicia Preide
Coordinadora Provincial
Residencia de Arquitectura para la Salud
residenciaarquitecturaff@gmail.com
HOSPITAL SAN JUAN DE DIOS, LA PLATA
Centro Quirúrgico Unificado en el Hospital Interzonal Especializado en Agudos y Crónicos
Coordinación docente: Arq. Florencia Husson
Equipo Arquitectura: Pilar Larroudé Lavié
Residentes: Arqs. Romera, Nicolás / Maida, Melisa Johanna / Mac Adden, Julia / Franco, Freddie Guillermo / Ponce, Ma. Emilia / Pachuelo, Sabrina Ayelén
El Hospital Interzonal Especializado en Agudos y Crónicos “San juan de Dios” de la ciudad de la plata, es una institución pública dependiente del Ministerio de Salud de la Provincia de Buenos Aires, con un perfil especializado en la atención de la patología Torácica-Cardiovascular y Pulmonar y de Enfermedades Infecciosas. Se ha constituido a lo largo de su historia, en el lugar de derivación de pacientes a nivel provincial para la resolución de los casos de mayor complejidad clínica y quirúrgica, brindando una cobertura universal en el contexto de la Provincia de Buenos Aires, dentro de la región sanitaria XI.
El sistema de salud provincial, es un modelo de organización social para dar respuesta a los problemas de salud de la población. En general, la atención que se brinda se divide en 3 niveles, perteneciendo el San Juan de Dios al tercer nivel de atención, complementado a su vez con la UPA 6 de Los Hornos, que pertenece al primer nivel de atención.
En la actualidad, se encuentra emplazado en tres manzanas lineales, dando como resultado la división en dos áreas edilicias: el “Área A” para el tratamiento de enfermedades infecciosas, y el “Área B”, para el tratamiento de patologías torácicas. Es por esto, que el funcionamiento de las prácticas asistenciales de alta complejidad, de hospitalización y quirúrgicas se encuentran parcialmente disgregadas, provocando fuertes conflictos en el traslado de pacientes críticos y de urgencia, en la operatividad de los trabajadores y en la administración del recurso físico, material y humano.
Situación actual
Actualmente funcionan dos áreas quirúrgicas separadas físicamente entre sí: por un lado, el servicio de Cirugía cardiovascular ubicado en el “Área B” del edificio “El Tórax”, con un diseño de planta física, materiales constructivos e infraestructura del año 1949, equipada con dos quirófanos operativos y sus respectivos apoyos, y por otro lado el servicio de Cirugía torácica, ubicado en el “Área A” formando parte del edificio fundacional del año 1989, equipado con un quirófano y una sala de procedimientos operativos. En ambos casos la infraestructura y el diseño arquitectónico ha quedado obsoleto para el contexto de las prácticas médicas actuales y el nuevo paradigma de salud.
El bloque quirúrgico del “Área B” está fuertemente vinculado con el servicio de esterilización, UTI, internaciones y la guardia, facilitando la operatividad y el funcionamiento en conjunto. No así, el bloque del “Área A” donde la disgregación es total y se encuentra distanciado 150 metros, como un centro quirúrgico diferente dentro del mismo hospital. Hace correlato a un viejo paradigma en salud donde había un determinismo biológico teniendo como enfoque principal la ausencia de enfermedad, dejando de lado los aspectos sociales y los derechos a una atención integral y digna de los usuarios de la salud, generando la consecuente disgregación en el trabajo en conjunto entre las diferentes especialidades médicas, plasmado en la planta física del efector.

Plan Director – Unificación de Quirófanos
De acuerdo con los lineamientos del Plan Director del nosocomio, se propone la consolidación de los servicios de Alta complejidad en una misma manzana, en el “Área B”. Los servicios correspondientes al área ambulatoria, área administrativa, hospital de día y docencia e investigación se consolidan en el “Área A”. El criterio adoptado para el diseño general corresponde al ordenamiento de los paquetes funcionales según las relaciones y vinculaciones deseables, indeseables, fuertes y débiles entre sí, y el análisis de los diferentes tipos de flujos circulatorios segmentados en técnico, público, mixto, restringido y semi-restringido.


Este proyecto de “Creación y unificación del centro quirúrgico” se centra en la refuncionalización, consolidación y traslado total de los quirófanos al “Área B”, en cercanía a los servicios de Alta complejidad, acompañando al nuevo enfoque en la atención de la salud pública centrada en el paciente, y de manera integral.
Se propone la construcción de Unidades funcionales que sean utilizadas como quirófanos polivalentes, en cercanía con los servicios de Esterilización, Guardia, Unidad de Terapia Intensiva y Unidad Coronaria, de manera tal que se puedan optimizar los recursos materiales, físicos, humanos y equipamientos necesarios.



Proyecto – Creación de Centro Quirúrgico
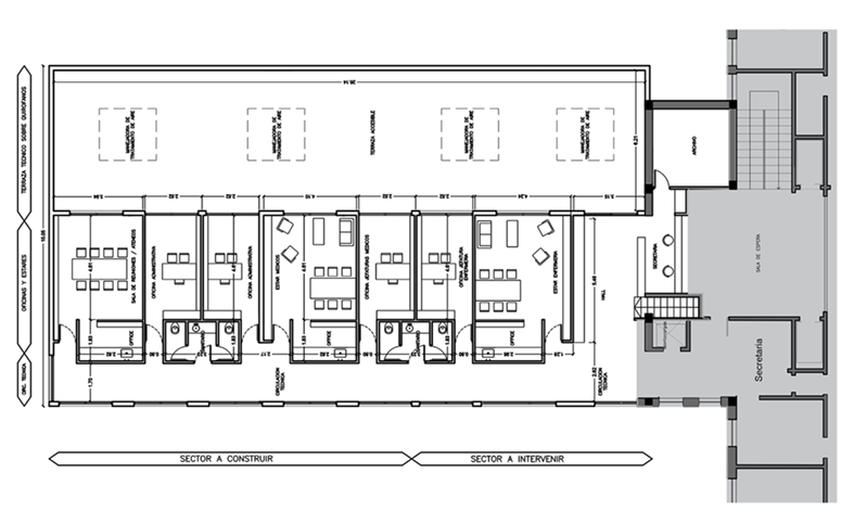
El proyecto para la creación del centro quirúrgico, está planificado para ser realizado en diferentes etapas. A modo introductorio, se encuentra ubicado en el tercer piso del edificio “Tórax” y está compuesto por un total de 8 quirófanos con sus respectivas áreas de apoyo y circulaciones.
En el marco de la creciente demanda social en materia de Salud pública y frente a la crisis económica y social, surge la necesidad y urgencia de dar respuesta a la escasez de recursos económicos. Es por este motivo que se plantea un proyecto a realizar en etapas.
En esta publicación, el enfoque estará puesto en la primera etapa, dado que consideramos que es la más importante, porque se comienza con el proceso de unificación en función de priorizar los derechos del paciente.


El proyecto involucra la reforma y readecuación de la planta existente, y la ampliación de la superficie, en el sitio donde actualmente se encuentra el servicio de Cirugía cardiovascular.
El partido inicial del proyecto fue la organización de la planta en tres áreas diferenciadas:
-Circulación técnica y vestuarios de personal,
-Locales de apoyocon acceso desde los quirófanos,
-Circulación restringida y unidades funcionales.
Esta organización adoptada conlleva un correlato de diferenciación en niveles de asepsia, permitiendo establecer límites precisos entre las distintas funciones de la planta, acompañando con la discriminación de las circulaciones.
Se propone dotar al área de todas las condiciones edilicias necesarias en cuanto a superficies y medidas mínimas, materiales constructivos, equipamiento e instalaciones, según reglamentaciones vigentes.



Conclusión
La reestructuración del hospital San Juan de Dios en La Plata apunta a unificar sus áreas quirúrgicas para mejorar la atención médica. Este proyecto, centrado en la primera etapa de un proceso más amplio, busca optimizar recursos y ofrecer una atención integral y centrada en el paciente.
Es un llamado a reflexionar sobre la importancia de adaptar las infraestructuras de salud a las necesidades actuales para garantizar una atención médica eficiente y de calidad, sin dejar de lado el contexto social y económico actual.
El desafío de este trabajo, es romper con el modelo médico hegemónico, poniendo siempre el foco en el usuario, y entendiendo que la Salud es un problema complejo, que debe abordarse de una manera interdisciplinaria.
El rol del arquitecto en los establecimientos hospitalarios y en el campo de la salud pública es complejo, y viene aparejado constantemente de las dificultades en el crecimiento de la demanda espontánea en consulta ambulatoria y prácticas asistenciales, que son consecuentes a las coyunturas y crisis sociales y económicas actuales. La actualización y formación en temas como la humanización, la accesibilidad y adaptabilidad de los espacios de salud es de suma importancia para trabajar interdisciplinariamente y enmarcar a la Arquitectura en el nuevo paradigma, donde se comprende el ambiente en el que se desarrollan los problemas de salud y de las personas con un enfoque integral, centrando la atención en el usuario de salud.
Florencia Husson es arquitecta egresada de la Facultad de Arquitectura y Urbanismo de La Plata (1999). Antecedentes docentes. Facultad de Arquitectura y Urbanismo. U.N.L.P. Coordinadora docente Residencia para la Salud provincia Bs As (2021-actualidad). Área Proyecto especialización Hospitales provinciales (1998-2008) Arquitecta especializada en Salud I Hospital Interzonal San Juan de Dios de La Plata (2008-actualidad). Coordinación y Asesoramiento para el Ministerio de Salud de la Prov. De Bs. As.
Pilar Larroudé Lavié es arquitecta egresada de la Facultad de Arquitectura y Urbanismo de La Plata (2016). Arquitecta especializada en Salud en el Hospital Interzonal San Juan de Dios de La Plata. Coordinación y Asesoramiento para el Ministerio de Salud de la Prov. De Bs. As.
Nicolás Romera es arquitecto egresado de la Facultad de Arquitectura y Urbanismo U.N.L.P. (2017). Actualmente desempeñando el cargo de Residente de 3° año de Arquitectura para la Salud en el Hospital Interzonal Especializado en Agudos y Crónicos “San Juan de Dios” La Plata.
Melisa Johanna Maida es arquitecta graduada en la Facultad de Arquitectura y Urbanismo de la Universidad Nacional de La Plata (2016). Se desarrolló en el ámbito privado como profesional independiente. En el ámbito público, en formación para la especialización de “Arquitectura para la Salud” en el Hospital Interzonal Especializado en Agudos y Crónicos “San Juan de Dios” La Plata.
Julia Mac Adden es arquitecta con formación en la Facultad de Arquitectura y Urbanismo de la Universidad Nacional de La Plata (2018). Su experiencia incluye la participación en estudios de arquitectura. En el año 2022 comenzó su formación para la especialización de “Arquitectura para la Salud” en el Hospital Interzonal Especializado en Agudos y Crónicos “San Juan de Dios” La Plata.
Freddie Guillermo Franco es arquitecto egresado de la Facultad de Arquitectura y Urbanismo U.N.L.P. (2019). Actualmente desempeñando el cargo de Residente de Arquitectura para la Salud en el Hospital Interzonal Especializado en Agudos y Crónicos “San Juan de Dios” La Plata.
María Emilia Ponce es arquitecta egresada de la Facultad de Arquitectura y Urbanismo U.N.L.P. (2010). Actualmente desempeñando el cargo de Residente de Arquitectura para la Salud en el Hospital Interzonal Especializado en Agudos y Crónicos “San Juan de Dios” La Plata.
Sabrina Ayelén Pachuelo es arquitecta egresada de la Facultad de Arquitectura y Urbanismo U.N.L.P. (2022) Actualmente desempeñando el cargo de Residente de Arquitectura para la Salud en el Hospital Interzonal Especializado en Agudos y Crónicos “San Juan de Dios” La Plata.
Contacto: residencia.arq.sjd@gmail.com



GIPHY App Key not set. Please check settings