En esta oportunidad se trata del desarrollo de la construcción de un nuevo edificio y rehabilitación de un sector del edificio existente en el Hospital Universitario Austral, que se encuentra ubicado en la localidad de Pilar en la Provincia de Buenos Aires a 59 km de la Ciudad de Buenos Aires que cuenta con una capacidad instalada de 40.633 m 2 y 280 camas.
El hospital está ubicado en un Campus más extenso en el que se distribuyen edificios ligados a la Universidad, sin embargo, su escala, diseño y volumetría se destacan respecto al entorno y constituye una Imagen Institucional muy definida y fuerte. En este sentido, nos pareció importante preservar y acentuar esa imagen no desvirtuando la tipología tan clara del edificio.
Sabemos que las instituciones de salud tienen necesidad de modificaciones y crecimiento de su estructura edilicia, en este proceso se producen intervenciones que pueden modificar la configuración original con valores estéticos diversos. Teniendo en cuenta esta situación, tuvimos especial atención en la integración del nuevo edificio con el existente, tratando de no constituir una ruptura con el conjunto y lograr la integración funcional de ambos, utilizando un lenguaje que incorpore criterios de diseño actuales.


El hospital cuenta con una tipología definida constituida por un basamento que reúne la atención ambulatoria, y dos alas de 6 pisos cada una, en el primer piso del AREA 0 está ubicado el Centro Quirúrgico Central, en los pisos superiores se desarrollan las internaciones de diferentes complejidades.
El proyecto propuso un puente que conecte el edificio existente con el nuevo
destinado al Centro Quirúrgica Ambulatorio permitiendo la vinculación entre ambos, si bien cada uno funciona como servicio independiente.



PROGRAMA MEDICO
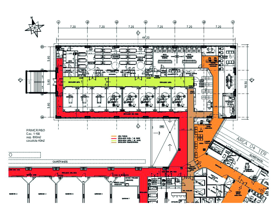
El nuevo edificio cuenta con 3.150 m2 distribuidos en tres plantas y un ático técnico, a fin de respetar los niveles existentes, se denominan subsuelo hasta primer piso.
En un sector del subsuelo se encuentra la cocina y se planteó el desafío de construir los pisos superiores con la misma funcionando, que obligo a construir una viga puente a fin de no interferir con la estructura nueva. Asimismo, la situación de trabajar en un edificio funcionando requiere medidas especiales de sectorización, control polvo, movimiento de personal a fin de mantener las correctas condiciones infecto lógicas.
SUBSUELO – Área Administrativa(texto) PLANA BAJA – Capilla- zona de reunión-





El Centro Quirugico ambulatorio cuenta con 5 quirofanos ambulatorios, 3 salas de endoscopia , 18 puestos de recuperacion , farmacia ,locales de apoyo, zona de trabajo de medicos fuera del area quirurgica en un sector con vistas hacia el campus a fin de mejorar las condiciones ambientales del area.
La estructura cuenta con un modulo de 7,20 x 17,50 con vigas de 0,80 x 1,70 y losas alivianadas que posibilita las plantas libres sin columna intermedias, los muros son de roca de yeso, condiciones que facilitan la flexibilidad del espacio permitiendo, de ser necesario, reconfigurar los locales antes posibles cambios.
Las instalaciones cuentan con control de accesos, detección de incendio, con un sistema de extracción de humos en circulaciones para caso de un siniestro , CCTV, cada planta se conecta al sistema BMS para gestión del mantenimiento del edificios existente.







REHABILIATCION 6 PISO PARA INTERNACION DE 42 CAMAS
El proceso de planificaion del edificio del CQA se realizo en forma conjunta con un equipo del la Institucion, este espacio de trabajo y dialogo con los intercutores claves permitio tomar decisiones compartidas en relacion a la formulacion del proyecto.
Asimismo se transformo en una oportunidad para pensar toda la institucion e identificar la necesidad de mejorar el flujo de trabajo clinico y cambios en la demanda asistencial.
En ese marco ,se tomo la decisión de utilizar el sexto piso del ala denominada AREA 2 que contaba con toda la superficie vacante,para ampliar las camas de internavcion
El nuevo servicios cuenta con 1330 m2 y 42 habitaciones repartida entre habitaciones de 2 camas e individuales, teniendo en cuenta las nuevas patologias se incluyeron una habitacion con presion para pacientes infectocantagiosos y otra destinafsa a pacientes inmunodeprinidos ambas con con los filtros de alta eficiencia.






REFLEXIONES FINALES
• La integración de dos edificios de diferentes épocas sin generar una ruptura estética, funcional o estructural se puede lograr mediante una combinación cuidadosa de estrategias de diseño, técnicas constructivas y la reinterpretación de lo existente mediante la incorporar elementos del edificio antiguo (formas, ritmos, colores) en un lenguaje actual.
• La ampliación física de un hospital no puede pensarse aisladamente. obliga a repensar toda la institución como un sistema integrado, con impacto en sus prácticas, estructura, cultura y visión de futuro.
• La modificación de una institución de salud es una oportunidad estratégica para evolucionar. No se trata solo de crecer en superficie, sino de transformarse integralmente. Obliga a pensar al hospital como un sistema complejo, donde cada cambio físico debe ir acompañado de una reflexión profunda sobre el propósito institucional, las personas que lo integran y el entorno en el que actúa.
• Este proceso fue una oportunidad para plantear un horizonte de cambio e incorporar en el diseño aspectos como el bienestar personal (pacientes y personal) atención centrado en el paciente, estructura con flexibilidad – adaptabilidad y tecnología integrada.
Arq. Elvira Contreras,
Equipo: Arq. Adrián Mendes, Arq. Josefina Gondra
Elvira Contreras es arquitecta egresada de la FADU-UBA. Aspirante a Magister en Administración de Sistemas y Servicios de Salud, Facultad de Medicina UBA. Docente desde hace 30 años en la Facultad de DADU.UBA. Becaria en dos períodos del Gobierna de Francia (ACTIM). Curso de Gerencia Social para Directivos que dicta el INDES/BID, Washington DC. Directora durante 18 años de la Diplomatura de Gestión y Diseño 1 – 2 AADAIH-UGR. Disertante en congresos en Argentina, España, Uruguay, Brasil, Colombia, Chile, México y Costa Rica. Es titular del Estudio Arq. Contreras & Asoc.



GIPHY App Key not set. Please check settings