Curadoria de imagens, elaboração de diagramas e figuras: Pedini, Gabriela
Este artículo desarrolla dos caminos metodológicos de lectura y presentación del Hospital Público de Emergencia de São Bernardo do Campo, SP, Brasil.
El primero, conceptual, aborda la concepción del hospital, las decisiones urbanísticas y arquitectónicas, así como el proceso participativo con el apoyo del cliente y sus diversos colaboradores del área de salud, para el desarrollo del proyecto.
El segundo, descriptivo, muestra a través de dibujos, fotos y diagramas el edificio, sus principales flujos, el basamento crítico y de emergencia, el nivel intermedio relacionado con los empleados, cuerpo clínico, enseñanza e investigación y la torre superior de hospitalización; también presenta las áreas y conceptos técnicos de los sistemas de edificios, la solución estructural y los elementos constituyentes del lenguaje y expresión del edificio.
El Hospital Público de Emergencia de São Bernardo do Campo, parte del Complejo Hospitalario Municipal, es el principal destino para atención de accidentes y emergencias. Funciona como puerta de entrada del sistema de salud público, tiene 266 posiciones entre camas y sillones y atiende tanto al público adulto como pediátrico, compartiendo entre ellos algunos programas de apoyo, funcionando sin embargo como dos edificios independientes en lo que respecta al acceso público.
Como Hospital de Emergencia, el diseño está orientado por los conceptos y protocolos médicos sobre clasificación de enfermedades y riesgos a través de un proceso de triaje y flujo de pacientes por el principio de prioridades.
El edificio, con un área total de 20.600m², ocupa toda la extensión de una manzana estrecha y larga. La fachada principal es pública, está dispuesta a lo largo de la calle Joaquim Nabuco. Mientras que la extensión total de la calle Cacilda da Cruz Ferreira funciona como una calle interna para acceso de ambulancias, servicios y muelles.
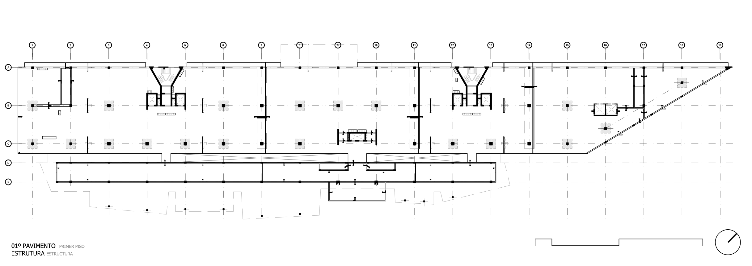
El edificio se dividió en dos grandes volúmenes superpuestos. El basamento, con tres pisos de altura, mide 185 m de longitud por cerca de 35m de anchura. La planta baja es la recepción y alberga todos los programas de primeros cuidados y decisión clínica. Justo encima de él, en el primer piso, están las salas de cirugía, diagnósticos y unidades de cuidados intensivos.
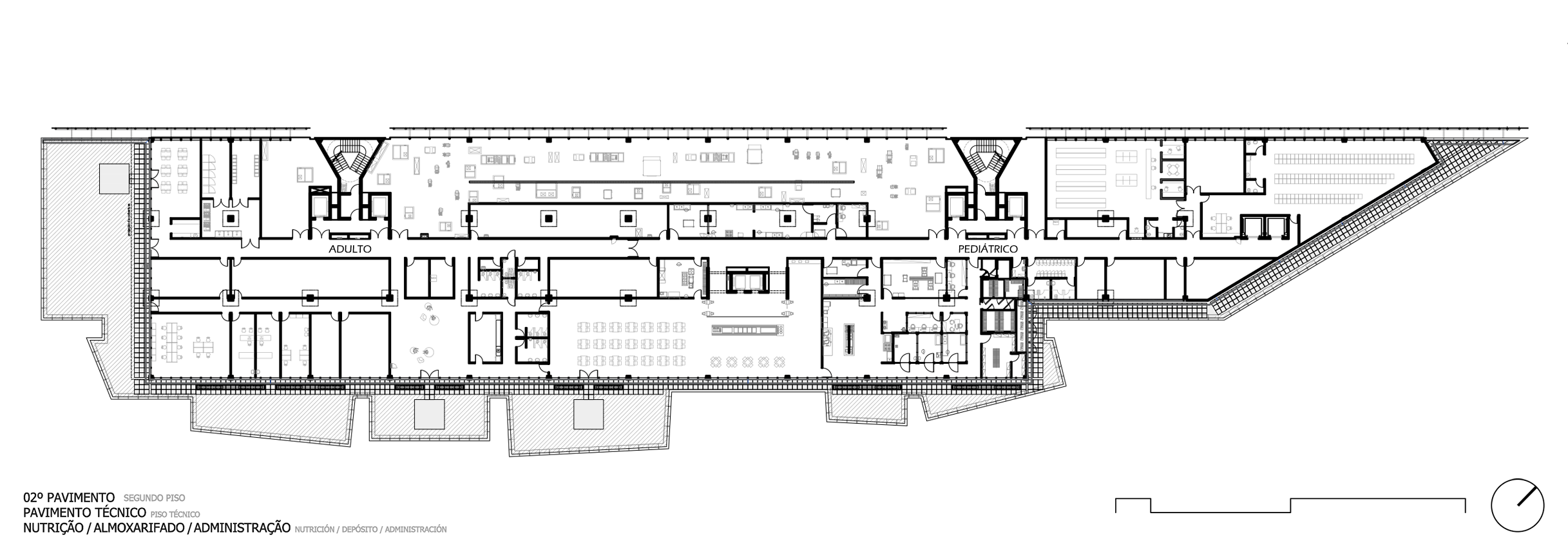
El segundo piso está dedicado a máquinas y apoyo, funciones que normalmente se disponen en el sótano y en este caso se desplazaron al segundo piso debido a que el área de implantación del hospital tiene un historial de inundaciones.
La planta baja funciona como un dique de contención, de modo que incluso el acceso a la galería técnica inferior solo se hace a partir de este nivel y así se estableció la planta baja en la cota de nivel segura de inundaciones.
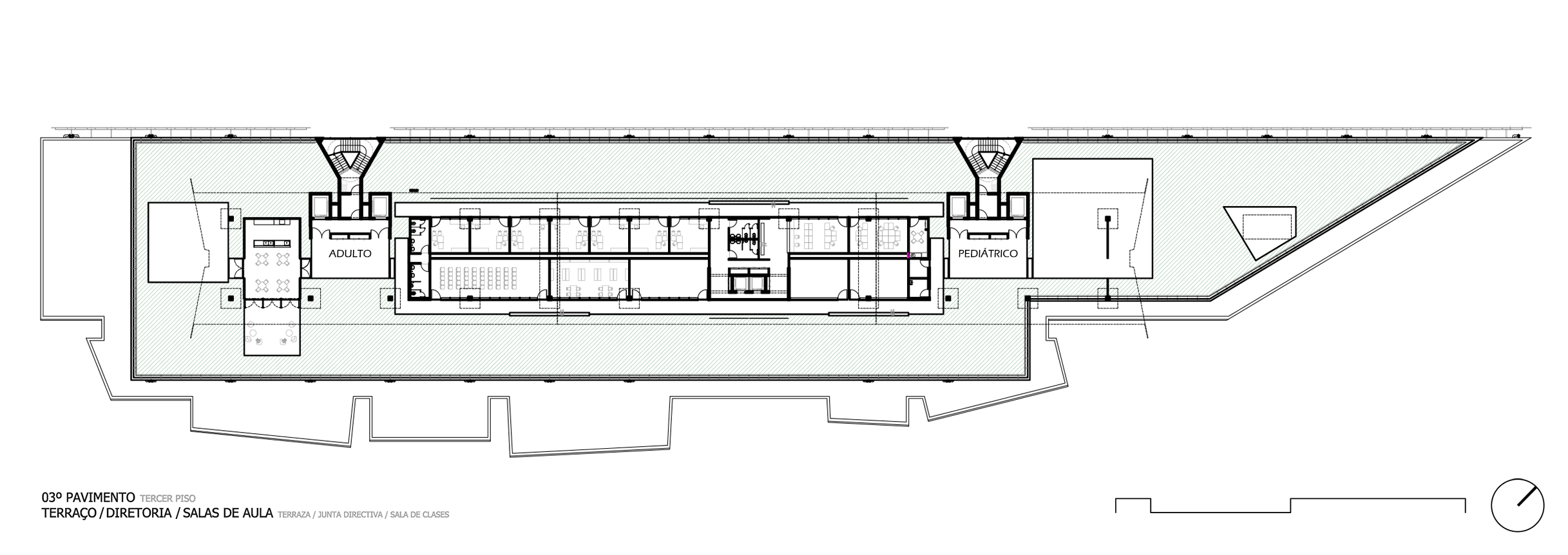
El volumen superior, con tres pisos, mide 115 m de longitud por 15m de anchura y alberga 159 camas de hospitalización sumados pediátricos y adultos.
Entre el basamento y el volumen superior, se dejó un piso más libre que trata la losa de cubierta del basamento, que se extiende holgadamente más allá de la proyección más esbelta de la lámina de hospitalización, como una plaza.
Este piso atiende la demanda de la comunidad que trabaja en el hospital, ofreciendo áreas de descanso y convivencia en los intervalos durante el trabajo. Además, es en este piso donde están dispuestas las funciones administrativas ligadas a la dirección y las funciones didácticas que también funcionan como residencia para los estudiantes de medicina.
Se consideró que el tamaño de este equipo público, sumado a la indefinición de los espacios públicos en su entorno, ofreció la posibilidad de proponer un nuevo diseño para sus dos frentes con una plaza sombreada por un conjunto de árboles cuidadosamente diseñados por el arquitecto paisajista como modo de ofrecer una deseable transición entre el edificio y la ciudad.
Hospital Público de Emergencia
El Hospital Público de Emergencia de São Bernardo do Campo, HUSBC, forma parte del Complejo Hospitalario Municipal, siendo el primer destino de las ambulancias que atienden accidentes y emergencias. Puerta de entrada del sistema de salud pública, cuenta con 266 posiciones entre camas y sillones. Su programa combina hospital adulto y pediátrico, que comparten algunos programas de apoyo funcionando como dos partes independientes al acceso público.
El edificio, con una superficie total de 20.600m², ocupa toda la extensión de una cuadra estrecha y larga. La fachada principal es pública y está dispuesta a lo largo de la calle Joaquim Nabuco, mientras que la extensión total de la calle Cacilda da Cruz Ferreira funciona como una calle interna para acceso de ambulancias, servicios y muelles.
El edificio se dividió en dos volúmenes superpuestos: basamento y lámina superior.

El basamento, con tres pisos de altura, mide 185m de longitud por aproximadamente 35m de ancho. La recepción se encuentra en el piso bajo, que también alberga todos los programas de primeros cuidados y decisión clínica. Justo encima, en el primer piso, se encuentran las salas de cirugía, terapia intensiva y diagnósticos.
Las máquinas y ambientes de apoyo, que generalmente se encuentran en el sótano, en este proyecto se desplazaron al segundo piso debido al historial de inundaciones en el área de implantación del hospital, que tiene un nivel freático poco profundo y un arroyo canalizado bajo el lecho de la calle Cacilda da Cruz Ferreira.
Se estableció el nivel del piso bajo en una cota segura de inundaciones, según información proporcionada por la Secretaría de Macrodrenaje, basada en su archivo histórico de eventos. El piso bajo funciona como un dique de contención, de modo que incluso el acceso a la galería técnica inferior solo se realiza a partir de este nivel.
La lámina superior, con tres pisos, mide 115m de longitud por 15m de ancho y alberga 159 camas de hospitalización, sumando pediátricos y adultos. Entre los dos, basamento y volumen superior, se dejó un piso más libre que trata la losa de cubierta del basamento, que se extiende más allá de la proyección de la lámina de hospitalización, como una plaza de uso interno para médicos y funcionarios del hospital.
Este piso responde a una clara demanda de los funcionarios al ofrecer espacios de descanso y descompresión durante los horarios de intervalo en la jornada laboral. En este piso se encuentran dispuestas las funciones administrativas ligadas a la dirección y también las didácticas, como residencia para estudiantes de medicina.

Se consideró que el tamaño de este equipamiento público, sumado a la indefinición de los espacios públicos en su entorno, ofreció la posibilidad de proponer un nuevo diseño para las dos fachadas de las calles Cacilda da Cruz Ferreira y Joaquim Nabuco.
La fachada más propiamente pública, junto a Joaquim Nabuco, gana una plaza sombreada por un conjunto de vegetación cuidadosamente diseñada por el arquitecto paisajista Raul Pereira, con el fin de ofrecer una transición deseable entre el edificio y la ciudad.
(2. el cliente, contexto político y gestión)
São Bernardo do Campo es una ciudad industrial de gran relevancia que compone la región Metropolitana de São Paulo. Con una población de 810 mil habitantes, ocupa la región sudeste de la Gran São Paulo, siendo delimitada al sur por la orilla de la represa Billings y forma parte del llamado ABC paulista*, junto con las ciudades de São Caetano y Santo André, con un papel fundamental en el proceso de industrialización de São Paulo.
*(Nota: ABC paulista se refiere a una región industrial y económica de São Paulo, Brasil, que abarca las ciudades mencionadas)

La ciudad de São Bernardo ganó relevancia histórica en la década de 1980 durante el proceso de redemocratización del país. Fue gracias a la acción de los sindicatos metalúrgicos en la región del ABC que se creó el contexto para el surgimiento de la mayor liderazgo obrero y político en el país post-dictadura, Luiz Inácio Lula da Silva, fundador del PT, Partido de los Trabajadores, en 1980.
Aún como Presidente del Sindicato de los Metalúrgicos de São Bernardo do Campo, Lula llegaría a la presidencia del país por primera vez en 2003. Fue durante el segundo mandato de Luiz Marinho como alcalde de São Bernardo do Campo por el PT en 2014, y con Odete Carmen Gialdi como Secretaria Municipal de Salud, que se realizó la convocatoria para concurso público de proyectos para la nueva sede del HUSBC.
Carlos Bakke, entonces director de Infraestructura de la Secretaría de Salud, por su competencia técnica, tuvo un papel destacado en el proceso del proyecto, al igual que la Dra. Renata Martello, en ese momento directora del antiguo HUSBC.
El HUSBC forma parte del complejo hospitalario municipal de equipamientos de salud y bajo la dirección de la Fundación ABC funciona como hospital de puerta de entrada. Como Hospital de Urgencia, sigue los nuevos conceptos de gestión y clasificación de enfermedades mediante el proceso de triaje y flujo de pacientes utilizando el principio de acceso rápido, o “fast track”, según el Protocolo de Manchester.
En el contexto que caracterizó la gestión urbana de São Bernardo do Campo en aquel gobierno, con acciones efectivas en otras áreas y a cargo de la gestión de otra secretaría, vale mencionar el empeño del arquitecto Alfredo Buso, entonces Secretario de Planificación Urbana, que imprimió un notable incremento en escala urbana referente a la movilidad y control de inundaciones, con gran destaque en el empeño por la calidad arquitectónica en consonancia con la calidad urbana.
Esto se reflejó tanto en la preservación del patrimonio, como fue el caso de la Escuela Primaria Jardim Calux diseñada por el arquitecto Paulo Mendes da Rocha en 1972, como en las renovaciones destacadas, como el caso de la Renovación de la Biblioteca Monteiro Lobato, proyecto de MMBB Arquitectos, y proyectos nuevos como la Fábrica de la Cultura, proyecto de Brasil Arquitectura.
En ese ámbito se desarrollaron los proyectos para el HUSBC, se lanzó la licitación de obra y se contrató a la constructora MPD. Aún en la fase de instalación del sitio de construcción, en 2017, las elecciones municipales trajeron al alcalde Orlando Morando Júnior del PSDB para la nueva gestión municipal, y el Secretario de Salud Geraldo Reple Sobrinho nombró como Director de la División de Infraestructura de la Secretaría al experimentado ingeniero Luiz Roberto Beber, quien desempeñó un papel decisivo durante la construcción del Hospital de Urgencia.
La obra se realizó con el apoyo del Banco Interamericano de Desarrollo (BID) y se inauguró el 14 de mayo de 2020, durante la pandemia de COVID-19. En un primer momento, el hospital funcionó enteramente dedicado a combatir la pandemia. Poco después, pasó a operar como originalmente estaba previsto, como un Hospital de Urgencia y puerta de entrada al Complejo Hospitalario de São Bernardo do Campo.
(3. el proceso de desarrollo del proyecto arquitectónico)
Se realizaron tres concursos y contrataciones separadas: arquitectura, estructura e instalaciones. Como estaba previsto, el proyecto de arquitectura comenzó con anticipación suficiente para elaborar el Estudio Preliminar de Arquitectura a partir del programa de necesidades elaborado por el equipo de médicos del complejo hospitalario y proporcionado por la Secretaría Municipal de Salud.
Durante esta primera fase, tuvimos la oportunidad de mantener una interlocución con las secretarías municipales, en particular con las de transportes y macrodrenaje. Posteriormente, surgió la posibilidad de contacto directo con los equipos del antiguo Hospital de Urgencia, que ya funcionaba en un edificio vecino al terreno destinado a albergar el nuevo edificio.
Por lo tanto, además del ya mencionado programa de necesidades y del precedente fundamental de tener un hospital en funcionamiento, más el compromiso de todo el equipo que lo componía, se inició la secuencia de diálogos para el nuevo edificio, según lo definido en la fase preliminar de elaboración del proyecto.
Estos diálogos se organizaron en reuniones semanales con cada especialidad (médica, enfermería, farmacia, exámenes y terapias, nutrición, limpieza, mantenimiento, seguridad, entre otras), siempre con la mediación de la directora del HUSBC, Dra. Renata Martello, y del director de infraestructura, Carlos Bakke.
Los conceptos rectores del desarrollo del proyecto se lanzaron en este momento y se abrieron a discusión, siendo así verificados y mejor elaborados ya en el inicio del proceso de proyecto.

(4. el concepto estructural)
El concepto estructural, como es habitual en nuestra práctica, se presentó también preliminarmente a los ingenieros estructurales Jorge Zaven Kurkdjian y Jairo Fruchtengarten.
Los dos volúmenes, basamento y lámina superior, que componen el edificio tienen estructura de concreto armado, con losas postensadas y libres de vigas. El basamento mide 185m x 40m, y la estructura está definida por una malla de pilares de sección cuadrada de 70cm de lado, coronados por un capitel cuadrado de 2,50m de lado y distanciados 10m entre sí.
Mientras que la fachada noroeste, que se abre hacia la calle interna, está definida por una única línea recta, la que se vuelve hacia la calle Joaquim Nabuco es recortada y definida por el diseño de una línea poligonal bastante libre. Sin embargo, a pesar de la irregularidad del polígono que define el basamento, la malla de pilares tiene raras excepciones.
La lámina superior, con tres pisos, mide 120m x 16m. Sigue el mismo principio estructural, intercolumnio de 10m y voladizos equilibrados de 3m de cada lado en su sección transversal. Estas láminas utilizan las dos cajas de escalera como contrafuertes.
Los voladizos, que definen las dos fachadas laterales, están rematados por pasillos metálicos y quiebra-soles en chapas de acero (5mm de espesor) perforadas y dobladas.

El concepto estructural imprimió una calidad al edificio que era deseable para la arquitectura. El concreto se mantuvo aparente no solo en las áreas externas, sino también dentro del edificio, incluyendo los techos de todos los ambientes de hospitalización.
Se tomó como calidad arquitectónica la durabilidad y baja mantenimiento del concreto armado. Además, el concepto estructural definió también el sistema constructivo, el cual imprimió notable velocidad a la ejecución de la obra, tanto en lo que respecta a la ejecución de la estructura, por la agilidad de las formas lisas sin la típica encofrado de las vigas, como en la ejecución de las instalaciones, densas y sin obstáculos, ya que la trama de vigas no existe.
(5. los resultados alcanzados)
El edificio, además de albergar el programa de atención a la salud, cuyo enfoque era crear un ambiente altamente funcional y que se integrara al objetivo principal, es decir, cuidar a los pacientes con dignidad, y también las actividades académicas de enseñanza e investigación como hospital escuela, establece con simplicidad y evidencia la relación entre el interior y el exterior, la luz y la insolación naturales que no confunden el ritmo circadiano de los usuarios.
El formato alargado y estrecho se configuró como una organización espacial propicia para que los empleados, pacientes y visitantes tengan instintivamente la noción de dónde se encuentran en el hospital.
Los ejes centrales, corredores lineales y de anchura generosa en los seis pisos de atención, y las torres de circulación vertical abiertas y naturalmente ventiladas en casi toda su altura, tienen índices claros para observaciones y lecturas de los individuos en las diversas posiciones dentro del edificio. Este atributo positivo se ve reforzado por la virtud de la transparencia de las fachadas de vidrio, que generan planos con vista plena hacia el exterior, siendo en las unidades de hospitalización, UCI y salas quirúrgicas, de piso a techo y en toda la anchura.
Esta relación visual con la ciudad – índice esencial para los enfermos de percepción y pertenencia al mundo que los rodea – se repite en los extremos de las áreas de circulación, que también funcionan como área de acumulación y rescate del sistema de protección contra incendios.

Son varios edificios dentro de un mismo edificio, actuando de manera colaborativa o como actividad final (salud, urgencias, enseñanza), o como actividad complementaria (sistemas de edificios, logísticos, servicios públicos y apoyos de todo tipo).
La entrada principal, en la calle Joaquim Nabuco, mantiene sus puertas abiertas a todos los que necesiten atención médica. Con el basamento alto de tres pisos, la planta baja del edificio, en fachadas opuestas, tiene recepciones ambulatorias y recepción de emergencia.
En la fachada de emergencia, en la calle Cacilda da Cruz Ferreira, se encuentra la Unidad de Decisión Clínica (UDC), donde se identifica y se aplica a los enfermos protocolos de triaje y clasificación de riesgo, lo que permite a los profesionales de la salud priorizar las atenciones inmediatas en relación con las demás que pueden demorar de 10 a 240 minutos, dependiendo del nivel de clasificación y gravedad.
Los niños y adultos son atendidos en espacios diferentes. A medida que se recorren los 185 metros a partir de la recepción de emergencia, las salas están organizadas de manera que reciben a los pacientes según la gravedad. Las atenciones más urgentes (nivel rojo) se realizan más cerca de la entrada, y las menos urgentes (niveles naranja, amarillo, verde y azul) ocurren en salas sucesivas y más alejadas del acceso.

En el primer piso, fácilmente conectado con la planta baja, organizadas y alineadas con el eje de acceso de emergencia, se encuentran ubicadas las salas de cirugía y videocirugía de acción inmediata y las unidades de tratamiento intensivo adulto y pediátrico.
El centro quirúrgico no tiene carácter electivo, sirviendo exclusivamente como salvaguarda y componiendo el conjunto de emergencia. La mecánica, los sistemas de aire acondicionado con filtración absoluta, compresores y soporte están en el segundo piso.
La galería en el sótano se destina exclusivamente a los sistemas de edificios hidráulicos: alcantarillado, aguas pluviales y de reutilización.
Estos primeros pisos descritos configuran un basamento fácilmente identificable en las calles circundantes. Por encima de él, se destaca un tramo del edificio como un edificio aparte, que dialoga con otra escala del tejido urbano.
Esta, con pronunciada distinción formal, anticipa sugestivamente al ciudadano, aún desde fuera, cómo funciona el interior del hospital. Vale destacar en el extremo sur de este volumen, el conjunto que alberga los sistemas de edificios de energía eléctrica con subestación, transformadores, banco de capacitores y cuatro generadores de 625 kVA, y en el extremo norte, el apoyo logístico, morgue, muelles, entrada de empleados, carga y descarga.

En los tres pisos superiores, se encuentran las 159 camas disponibles para atender a niños y adultos. La porción sur de la lámina de hospitalización está destinada a los adultos y la porción norte a los niños.
Eventualmente, uno u otro piso puede destinarse íntegramente al uso adulto o infantil, dependiendo de la estacionalidad de las enfermedades y del perfil epidemiológico y asistencial a lo largo del año.
La exigencia era de cuatro camas por habitación, y la solución fue colocar el baño en el centro del ambiente, dividiéndolo en dos partes y colocar dos camas en cada mitad. De esta manera, se atiende la exigencia de economía de operación con cuatro camas por habitación al mismo tiempo que se crea un ambiente cómodo de dos camas por espacio.
Las grandes ventanas de piso a techo en toda la extensión de la fachada garantizan una generosa luz natural debidamente filtrada por los quiebra-soles. En todas las unidades de atención y en las hospitalizaciones hay previsión de habitaciones individuales aisladas, con reversión de presión positiva o negativa, según la necesidad específica.

Esta lámina de hospitalización, con tres pisos, está visualmente marcada por los quiebra-soles de chapas metálicas blancas que protegen las habitaciones de la incidencia directa de los rayos solares, de modo que estos puestos de hospitalización no necesitan aire acondicionado, manteniendo el rendimiento térmico a lo largo del año.

Entre el basamento y el bloque superior de hospitalizaciones hay una terraza. El espacio al aire libre está destinado al descanso de los médicos y demás empleados en intervalos y horarios de comida, sin ser abordados por pacientes o acompañantes.
Los espacios para relajación del equipo de salud son importantes para el tratamiento médico.

La coronación del edificio es el tercer nivel técnico del conjunto hospitalario, que alberga los sistemas de edificios más robustos: depósitos superiores con reserva de consumo y de incendio, sistemas colectivos de calentamiento de agua, compresores y cuatro enfriadores de condensación por aire de 140 toneladas de refrigeración cada uno.


Este es un proyecto que utiliza la importancia y el tamaño de este equipo público como oportunidad para crear referencia, identidad y pertenencia para el ciudadano.

dIseños técnicos; anexo a: dibujos técnicos



FICHA TÉCNICA
Obra: Hospital Público de Urgencia, São Bernardo do Campo, SP, Brasil
Proyecto: 2014 – 2015
Construcción: 2015 – 2016
Arquitectos: SPBR Arquitetos
Angelo Bucci
Tatiana Ozzetti, Nilton Suenaga, Beatriz Marques, Victor Próspero
Lucas Roca, Martha Bucci, Beatriz Brandt
ARQLAB
[consultoria em arquitetura hospitalar I consultoría de arquitectura hospitalaria]
Sérgio Salles
Ivan Portero, Priscila Segala, Vinicius M. Oliveira, Fernanda V. Santos
SIC ARQUITETURA
[apoio produção desenhos em autocad I apoyar la producción de dibujos en autocad]
Fabio Kassai
Bruno Taiar de Carvalho, Ana Carolina Artuzi Aipp, George Ferreira, Renata Ribeiro Lopes, Mariana Ginesi
Consultores:
Estrutura I Estructura
Kurkdjian Fruchtengarten
Fundações I Cimientos
ENGEOS Engenharia e Geotecnia
Instalações Prediais I Instalaciones del edificio
MHA Instalações
Paisagismo I Paisajismo
Raul Pereira Arquitetos Associados
Orçamento e Custos I Presupuesto y Costos
Alberto Costa Neto
Engenharia de Especificações I Ingeniería de especificaciones
Leonardo Katori
Luminotécnica I Iluminación
LUX Projetos – Ricardo Heder
Eficiência Energética I Eficiencia Energética
MITSIDI – João Leal, Arthur Cursino, Edward Borgstein
Impermeabilização I Impermeabilización
PROASSP
Cozinhas Industriais I Cocinas Industriales
NUCLEORA
Elevadores I Ascensores
ZAPP Consultoria
Incêndio I Protección contra incendios
Cel. Altino Gianesini
Cliente
Fundação do ABC / City Government of São Bernardo do Campo
Programa
Hospital Público de Urgência
Área do Terreno
17.548,16 m²
Área Construída Total I Área total construida
21.831,81 m²
Sistema Estrutural I Sistema Estructural
Concreto Armado Convencional e Protendido I Hormigón Armado Convencional y Pretensado
Principais Materiais I Materiales principales
Concreto, Aço, Vidro e Alumínio I Hormigón, Acero, Vidrio y Aluminio
Modelo 3D I Modelos electrónicos
Ricardo Canton
Maquete I Modelo
Triviño Maquetes
Fotos de la obra y fotos de la maqueta
Nelson Kon
Sergio Salles es arquitecto y urbanista egresado de la Universidad de San Pablo (1989). Tiene un Máster en Arquitectura y Urbanismo otorgado por la Universidad San Judas Tadeu con la disertación: “Hospitales de la Fe y de la Ciencia”; orientadora Profesora. Dra. Eneida de Almeida. Doctorando en la FAUUSP, con la tesis: “Espacios de salud como espacios comunitarios.
Realizó proyectos de arquitectura para centros de atención básica y salud familiar en territorios vulnerables de la ciudad de San Pablo”; orientador Prof. Dr. Francisco Spadoni.
Es Profesor de la Facultad de Arquitectura y Urbanismo de la Universidad Mackenzie, desde el año 2021. Fue Profesor Adjunto de la Universidad San Judas Tadeu, de 1999 a 2021. Dicta asignaturas con énfasis en proyectos de arquitectura, tecnología de la construcción y sistemas constructivos, además de orientar trabajos finales de grado. En la Universidad San Judas Tadeu coordinó el Trabajo Final de Grado desde el año 2011 al año 2019 y participó como miembro efectivo del consejo de curso y del Núcleo Docente Estructurante desde del año 2012 al año 2020.
Cuenta con Experiencia en proyectos de Arquitectura y Urbanismo, con énfasis en arquitectura hospitalaria. Tiene su propio estudio de arquitectura y urbanismo desde 1989.
Angelo Bucci es arquitecto egresado de la Universidad de San Pablo (Brasil) y magister y Doctor en arquitectura, ambos títulos otorgados por la misma institución. También es Miembro Honorario del Instituto Americano de Arquitectos. Fundó y dirige el estudio de arquitectos SPBR. Es Fundador y socio de MMBB arquitectos.
Profesor de la práctica – MIT, Cambridge, EE.UU. y de la Universidad de San Pablo (Brasil).Ha sido profesor visitante en La Escuela Politécnica Federal de Zúrich, Suiza entre los años 2013-2014, también en la Universidad de Cuenca de Ecuador en el año 2007 y en la Universidad Andrés Bello de Santiago, Chile. Ha sido Profesor Invitado en la Universidad Torcuato Di Tella de Buenos Aires, en la Universidad pública de Austin Texas, EE.UU, y la Universidad pública de arquitectura de Venecia, Italia.
Desde 1989, ha trabajado simultáneamente en dos frentes complementarios:
profesionalmente, como arquitecto, y académicamente, como profesor de arquitectura. SPBR, fundada en el año 2003, representa una síntesis entre la práctica profesional y el conocimiento teórico, entre el dibujo y la palabra.



GIPHY App Key not set. Please check settings