Como toda obra de arquitectura, el proyecto de un edificio para la salud requiere de soluciones específicas ante cada caso particular. Ningún edificio es igual a otro y es, en el proceso de diseño donde se interpretan, elaboran y sintetizan las necesidades programáticas, con las características del sitio y los elementos teóricos.
Al mismo tiempo este tipo de proyectos se caracterizan por estar muy condicionados por aspectos funcionales, tecnológicos y normativos, aunque no deberían perderse de vista variables del diseño que suelen tener mayor presencia en otros temas de la arquitectura.
Asimismo, el escenario actual que cambia aceleradamente, requiere de profesionales que tengan la capacidad de integrar las nuevas tendencias tecnológicas, de procesos y culturales, en el diseño del objeto arquitectónico.
La formación de este posgrado se realiza en el marco teórico de la articulación y síntesis de los paradigmas del hospital como máquina de curar y del diseño salutogénico, entendiendo que los mismos son los vigentes actualmente en la arquitectura para la salud. El primero se trata del modelo clásico, racional y funcionalista desarrollado en la segunda mitad del siglo pasado, mientras que el segundo se trata del modelo fenomenológico que con una visión holística incorpora conceptos como humanización y sustentabilidad que han adquirido gran importancia en este siglo.
El Taller trabaja sobre la síntesis de ambos paradigmas a partir del análisis y la formación en los distintos campos temáticos del proyecto, y la aplicación de los mismos en el ejercicio proyectual.
Director: Arq. Luciano Monza
Coordinadora: Arq. Corina Passadore
Asesoras Académica: Arqs. Liliana Font y Alicia Preide
Docentes Taller: Arqs. Liliana Font, Mariana Irigoyen, Eduardo Maestripieri, Luciano Monza, Corina Passadore y Alicia Preide
Plan de Estudios
Módulo 1: Aprestamiento Proyectual
Conceptos Teóricos
– Historia y tipologías de los edificios para la atención de la salud
– Evolución y tendencias en arquitectura para la salud
– El proyecto arquitectónico
- – Gestión y procesos de los diferentes servicios asistenciales
Trabajos Prácticos
– TP1: Visitas técnicas virtuales y análisis de un hospital, sanatorio o clínica de agudos con internación, un edificio de atención para pacientes ambulatorios y un edificio con internación para patologías específicas.
– TP2: Ejercicio de aprestamiento (investigación individual): análisis de edificios existentes, a través de planos y memorias de los mismos. Se tomarán ejemplos internacionales y regionales. Entrega, exposición y discusión grupal de cada caso.
Módulo 2: Proyecto Macro
Conceptos Teóricos
– Implantación y accesos
– Estructura circulatoria
– Organización funcional
– Flexibilidad, adaptabilidad y crecimiento
– Forma y función
– Integración e impacto de las instalaciones y el equipamiento
– Uso, espacio y lugar
– Sustentabilidad
– Biofilia
– Confort
Trabajo Práctico
– TP3: Estudio de factibilidad o Plan maestro de un Polo Sanitario que incluye un hospital general de agudos, un centro con internación para larga estada, un centro de atención ambulatoria de complejidad y un centro de investigación. Se trabajará en equipo y el mismo programa en 2 localizaciones diferentes: una de baja o media densidad y otra de alta densidad. Cada grupo trabajará en un sitio, pero las discusiones y correcciones serán generales con el objetivo de ampliar la adquisición de conocimientos. Se trabajará sobre el proyecto general.
Módulo 3: Proyecto Micro
Conceptos Teóricos
– Consulta Externa, Urgencia/Emergencia
– Hospitalización Cuidados Intensivos, Intermedios y Especiales
– Cirugía, Hemodinamia y otros
– Obstetricia y Neonatología
– Imágenes y Laboratorios
– Hospitales de Día y Rehabilitación
– Medicina Nuclear
– Logística y Servicios Generales
Trabajo Práctico
– TP4: Proyecto de un sector de un edificio con varios servicios o completo de uno de los edificios del Polo Sanitario elaborado en el TP3. Se trabajará sobre el proyecto micro a nivel de las resoluciones internas de los sectores o servicios elegidos, que serán diferentes para cada alumno. Las discusiones y correcciones serán generales con el objetivo de que todos participen en el conocimiento y la comprensión del proyecto de todos los servicios que se desarrollen.
Cuerpo Docente
Alonso, María Teresa / Bottaro, Federico / Bueno, Graciela / Donato, Osvaldo / Fattorini, Marcelo / Font, Liliana / Gentile, Luciano / Irigoyen, Mariana / Maestripieri, Eduardo / Monza, Luciano / Passadore, Corina / Preide, Alicia / Sartori, Miguel / Sartorio, Alfredo / Sartorio, Javier / Valdez, Alicia / Vozzi, Carlos
Profesores Invitados en los años anteriores:
Badermann, Jonas (Brasil), Bello, Jorge (Argentina), Bitencourt, Fábio (Brasil), Cella, Daniel (Argentina), Corea, Mario (Argentina / España), De Pineda, Albert (España)
Duarte Aznar, Enrique (México), Fiset, Martin (Canadá), Marjovsky, Alberto (Argentina), Oliveira, Márcio (Brasil), Paniagua, Jorgelina (Argentina), Prieto, Álvaro (Chile), Sáez, Jaime (Chile), Urruty, Esteban (Argentina), Viale, Santiago (Argentina)
Trabajo presentado
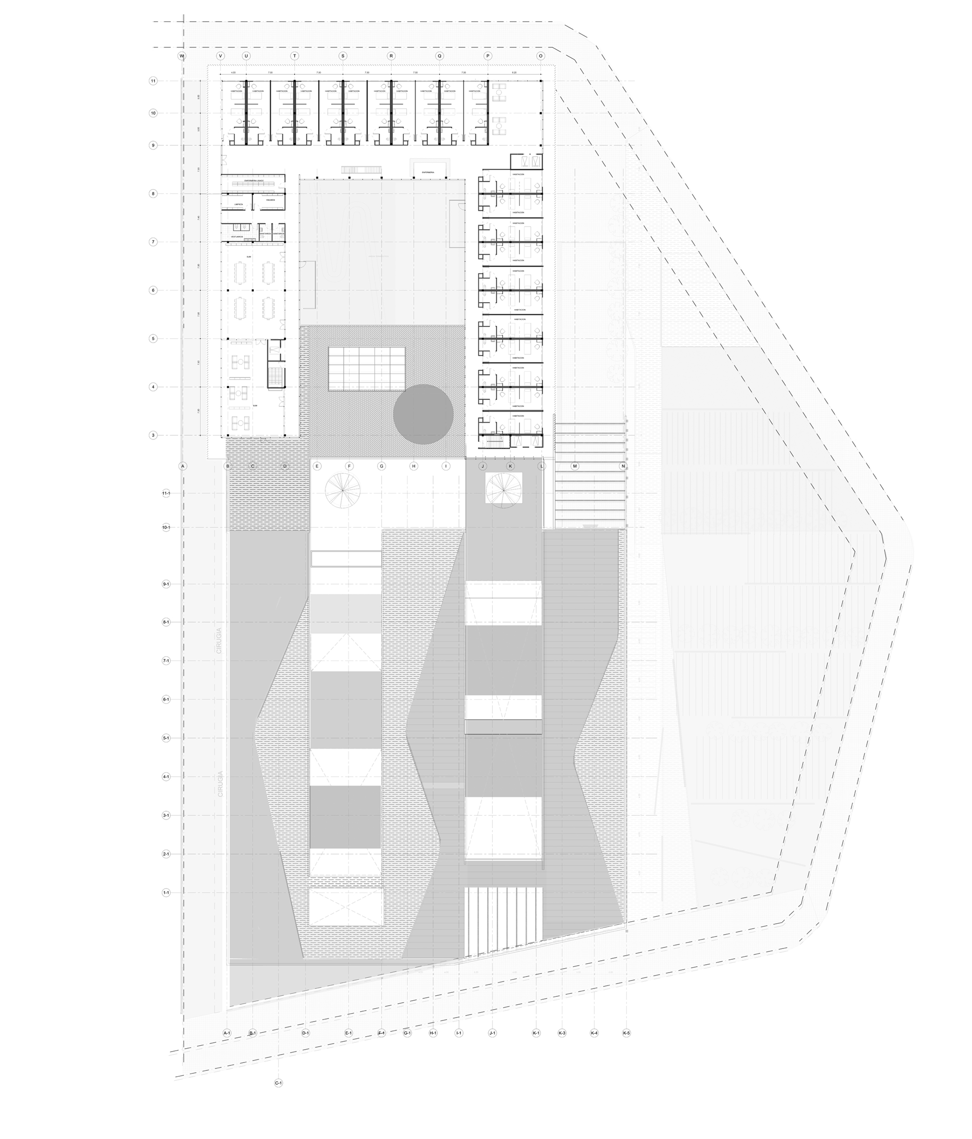
En este edición del Anuario AADAIH se muestra un trabajo del Posgrado en Proyecto de Edificios para la Salud, donde se aborda el diseño de un edificio con 2 programas complejos: un centro de rehabilitación con internación para pacientes con daños físicos y neurológicos severos, y un centro ambulatorio de complejidad que incluye consulta externa de adultos y niños, odontología, vacunatorio, imágenes, laboratorio de análisis clínicos, cirugía ambulatoria con hospital de día quirúrgico, y hospital de día clínico, además de servicios complementarios. Ambos programas son integrandos en un solo proyecto, en un sitio específico.
Se presenta el desafío de resolver los componentes espaciales, funcionales, circulatorios, constructivos y formales, enfatizando criterios de sustentabilidad y humanización, unificando estas temáticas abordadas en el taller.

Información: www.aadaih.org.ar
https://docs.google.com/document/d/1HugeXsFuk91jrzoaDsqJIMkoKopg4Xcy/edit?tab=t.0
Contacto: tallerproyectosalud@gmail.com y proyecto.salud@fadu.una.ar



GIPHY App Key not set. Please check settings