En nuestro mundo globalizado e híper conectado, el diseño a menudo sugiere libertades infinitas, llevando a una sensación de “vale todo”. Sin embargo, las problemáticas sociales actuales exigen sobriedad y responsabilidad. La arquitectura y la construcción, por ejemplo, contribuyen significativamente al consumo energético y a casi el 40% de las emisiones globales de carbono (GLOBALABC, 2020), lo que nos obliga a una profunda reflexión sobre nuestro rol.
Como arquitectos, la clave no es cómo generar energía, sino cómo reducir el consumo energético a través de nuestros procesos de diseño y construcción. De lo contrario, caemos en el “greenwashing”, una apariencia de sostenibilidad que enmascara la falta de compromiso real. La verdadera solución reside en integrar principios de diseño sustentable desde la concepción, valorando el sentido común e indagando en las lecciones que la historia y la cultura disciplinar nos ofrecen como un rico acervo de conocimiento.
El aporte de la cultura arquitectónica
Las soluciones a menudo residen en prácticas históricas simples: galerías romanas, muros gruesos de Estancias Jesuíticas de Córdoba, o el análisis climático de Wladimiro Acosta en su sistema Helios (WLADIMIRO ACOSTA, 1976). Decisiones basadas en la experiencia y el sentido común permiten orientar, proteger del sol y generar ventilación cruzada en climas cálidos y húmedos. Estas intervenciones sensibles minimizan la necesidad de acondicionamiento térmico artificial, mejorando el confort y la calidad de vida.
Sin embargo, a menudo ignoramos principios básicos aprendidos. Construimos fachadas idénticas sin reflexión climática o edificios acristalados en climas cálidos, creando “invernaderos indeseables” en busca de una malentendida “categoría”, reflejo de una desconexión entre teoría y práctica. El uso indiscriminado de materiales industrializados, percibidos como “high-tech”, nos aleja de la economía de cercanía y del valor de los materiales y la mano de obra locales, elementos fundamentales para edificaciones sostenibles y arraigadas.
Afortunadamente, arquitectos como Lacaton & Vassal demuestran cómo pequeñas y sencillas intervenciones, como añadir galerías, pueden transformar construcciones obsoletas, generando “buffers térmicos” y mejorando la habitabilidad y el confort.
El arquitecto Francis Kéré (Pritzker), en Gando, Burkina Faso, reinterpretó la tradición local. Utilizó inteligentemente materiales, técnicas y mano de obra disponibles, involucrando a la comunidad. Sus proyectos, como una escuela primaria con cubierta doble de arcilla y zinc para ventilación, o una biblioteca con lucernarios de vasijas de barro tradicionales incrustadas en la losa para filtrar luz y aire, demuestran soluciones sencillas y sostenibles que se adaptan a las necesidades y posibilidades específicas de cada comunidad. (Arquitectura Viva, 2018).
Toda región posee sus propios exponentes: en Córdoba, Togo Díaz, inspirado en Rogelio Salmona y Eladio Dieste, dejó un vasto legado de edificios con una fuerte tradición ladrillera, empleando el ladrillo como material por excelencia de la tierra cordobesa.
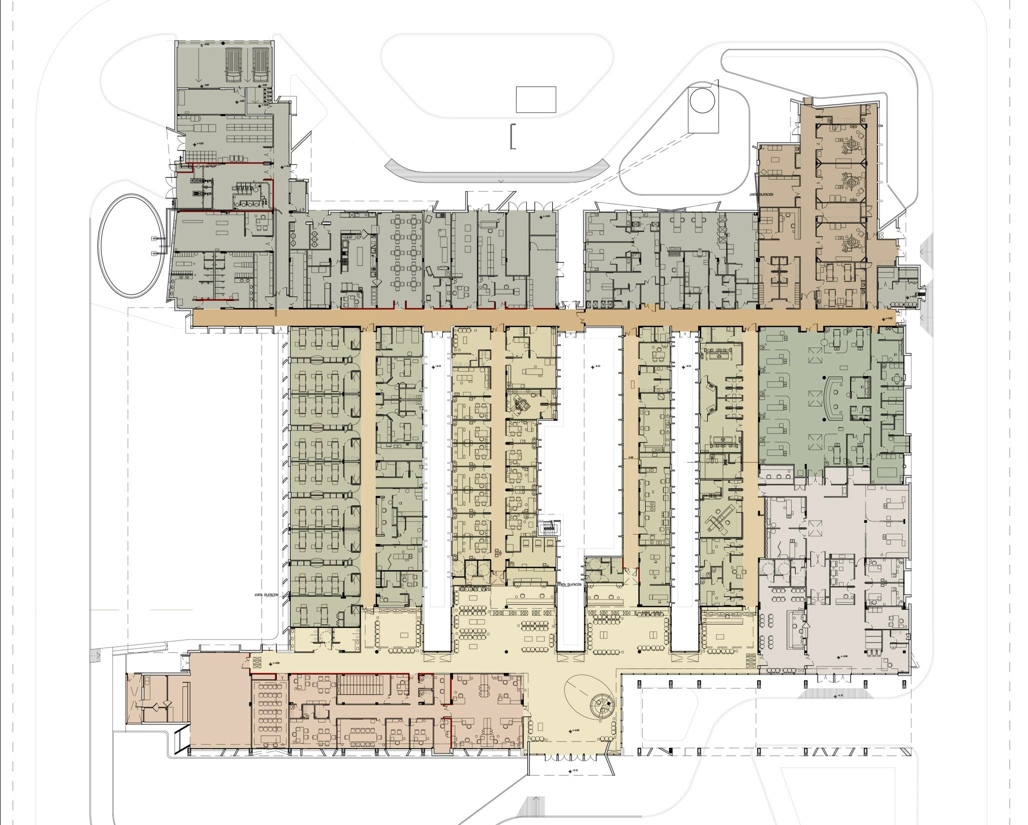
Hospital Municipal Villa El Libertador Príncipe de Asturias
Presentamos el Hospital Municipal Villa el Libertador Príncipe de Asturias, un centro de mediana complejidad ubicado al sur de Córdoba, en un populoso barrio de 250.000 habitantes, mayormente inmigrantes trabajadores. Responde a la deficiente infraestructura de salud de un vasto sector pericentral. Este hospital es de tipo sistémico, con áreas de internación, guardia, consultorios, laboratorio, servicio de imágenes, UTI y cirugía con tres quirófanos, abarcando unos 6200 metros cuadrados, y cuenta con circulaciones bien diferenciadas para el público, el personal médico y los proveedores.
El proyecto se concibe como una simple “caja mono-material” de ladrillo visto que envuelve una estructura de hormigón armado, distribuyendo bajo ella los espacios médicos (Santiago Viale, Ian Dutari, Alejandro Paz, 2014).

En sintonía con la horizontalidad barrial, se propone un edificio de una sola planta con doble altura en el sector público. Se emplaza en un terreno plano con acceso principal al norte, cuyo gran tamaño permite una calle de circulación restringida que circunda el edificio, separándolo del entorno. La obra se retira del frente, creando un amplio espacio público que jerarquiza la fachada principal y permite una visión completa del Hospital.

La elección del ladrillo no solo es práctica por su bajo mantenimiento en obra pública, sino que responde a una investigación constante sobre el material. Su uso es fruto de una búsqueda exhaustiva profesional y docente, donde hemos explorado sus posibilidades y conformado un banco de imágenes propio de usos constructivos.
La fachada norte se presenta como un gran cribado de ladrillo “modificado de escala”, funcionando como parasol de tres bandas horizontales.

El sol del oeste es frenado por costillas verticales rítmicamente espaciadas. Su espesor no es aleatorio, sino que resulta de un análisis de asoleamiento: protege del sol de verano (vertical a 82°) y permite su entrada en invierno, generando luz natural ideal para la salud. Así, la envolvente es eficiente y genera un lenguaje arquitectónico que surge de la respuesta al clima y del diseño estético.

Se busca reinventar este material ancestral y encontrarle nuevas posibilidades para la arquitectura contemporánea. Esta búsqueda, compartida con arquitectos latinoamericanos como Solano Benítez, José Cubilla y Javier Corvalán, desmitifica la idea de que un edificio sanitario complejo requiera envolventes industrializadas. En nuestra latitud, la abundancia de artesanos ladrilleros locales (muchos del mismo barrio) permitió que la tecnología empleada utilizara mano de obra local, convirtiendo el proyecto en generador de empleo y motor económico.
El uso del ladrillo conecta el complejo con la tradición cordobesa y su gente, mejora las condiciones térmicas interiores y minimiza el mantenimiento, gracias a su excelente comportamiento ante los amplios saltos térmicos del clima local.
Cada fachada fue objeto de reflexión propia. La fachada norte, además de parasol, funciona como un gran espacio intermedio, emulando galerías romanas que atemperan y transicionan entre exterior e interior, generando identidad propia.


Al avanzar de la parte pública hacia internación, placas de ladrillo verticales hacia el este frenan parcialmente el sol horizontal de esta orientación, reduciendo su impacto en las salas. Su disposición diagonal permite las visuales de los pacientes hacia el exterior. Se vinculan por un alero horizontal que regula la escala institucional, haciéndola más doméstica, respetando el sistema constructivo general.

La fachada oeste se trata de manera similar a la este, aunque más cerrada, para evitar la alta incidencia solar y la acumulación de calor ambiente a lo largo del día.
Respecto al resto de las envolventes, se tomó aprendizaje de edificios históricos como el Colegio Monserrat (400 años), caracterizado por su frescura y calidez gracias a sus muros de mampostería de más de 1 metro de espesor. Para el hospital, estos muros se reinterpretan como muros dobles con cámaras de aire rellenas de poliestireno expandido, funcionando como una fachada ventilada por vía húmeda. Esto reduce el espesor, logrando el aislamiento térmico deseado.
Materia y Luz
La luz natural siempre ha sido un tema de constante interés en la arquitectura, un elemento que los grandes maestros han sabido dosificar con precisión, como un condimento esencial en una comida. Desde la imponente cúpula del Panteón hasta las obras de Le Corbusier, Alberto Campo Baeza y Tadao Ando, la luz cenital se ha utilizado como “materia” que modifica el espacio y genera atmósferas, o como un recurso directo que moldea la percepción. Estos arquitectos han demostrado cómo la cantidad justa de luz puede transformar un espacio, evitando que se convierta en algo negativo. En el contexto de este proyecto, la luz cenital es un elemento clave. La utilización de luceras reduce la necesidad de iluminación artificial, a la vez que colabora en la humanización de los entornos para la salud, siendo muchas veces en la práctica simplemente un pequeño tajo en la losa de hormigón armado. Con el fin de humanizar la atención en salud, la distribución espacial permite que la mayoría de los locales tengan ventilación e iluminación natural. En el área de espera del público, el espacio de gran escala se divide y organiza gracias a la presencia de patios, creando un espacio de escala institucional. En los extremos de estos patios se ubican lucernarios con luz blanca, casi a modo de señalética, marcando los diferentes sectores de espera. Contra el fondo de las salas, la luz es más cálida, aportando confort y una atmósfera acogedora.


El trabajo con la luz natural en el área de terapia intensiva no es solo un recurso arquitectónico, sino que tiene una connotación terapéutica. Por esta razón, se diseñaron tres ingresos de luz cenital que aseguran la percepción, por parte de los pacientes internados, de la trayectoria de la luz solar a lo largo del día, manteniendo de alguna manera activo su reloj biológico.



Tecnología y Tradición
Al adentrarnos en el edificio, la rusticidad de los ladrillos en las fachadas se diluye. Aquí, la tecnología y la tradición conviven de forma eficiente y equilibrada, priorizando el sentido común: aprovechamos los recursos locales siempre que es posible. Sin embargo, en áreas críticas como las Unidades de Terapia Intensiva (UTI) y quirófanos, no hay espacio para la regionalización constructiva. Para la perfecta atención del paciente, se incorpora la última tecnología disponible dentro de lo previsto en la inversión —como pisos conductivos, transformadores de aislación y tableros especiales—, aceptando las demoras que esto pueda implicar, ya que la seguridad y el bienestar del paciente son la máxima prioridad.



Centro de Rehabilitación
En la misma línea de reflexión, presentamos el Centro Integral de Rehabilitación en el área central de Córdoba, un sector en renovación. El terreno disponible era un espacio reducido en medio de la manzana, aprovechando la normativa que permitía un pequeño hueco entre el corazón de manzana y los edificios colindantes.

El partido organiza una circulación hacia la medianera sur y los locales hacia el corazón de manzana. El programa incluye áreas hospitalarias, subsuelo técnico, hidroterapia, gimnasio, consultorios, habitaciones, y azotea técnica, distribuidas en el nuevo volumen y parte del edificio contiguo existente para maximizar prestaciones y metros cuadrados.

El edificio se concibe como una estructura de hormigón armado que se abre al norte, su orientación principal, con una envolvente vidriada protegida por una celosía de ladrillo a modo de parasoles horizontales. Estos se despegan de la envolvente, creando un espacio intermedio que genera sombras en vidrios y paramentos verticales, propiciando una refrigeración natural por corrientes de aire que circulan en este intersticio sombreado, reduciendo la radiación solar interior.
Se verifica nuevamente en la realidad construida los minuciosos estudios de asoleamiento del proyecto. Esto permite usar el sol como fuente de energía natural, regulando y controlando su ingreso mediante el sistema de parasoles horizontales de ladrillo armado.
El límite sur del edificio, sobre la medianera, se materializa con un edificio existente que actúa como cámara de aire, atemperando el frío y los vientos del sur. Así, las dos caras longitudinales se resuelven capitalizando la situación existente al sur y abriendo y protegiendo el edificio hacia la única orientación viable: el norte.



El aporte de la mano de obra local es determinante, pues las técnicas empleadas son artesanales y ejecutadas a la perfección por operarios habituados a este material en la región. En este contexto, a diferencia de otras latitudes donde lo artesanal es caro y lo industrializado es económico, aquí las tecnologías más innovadoras son de difícil acceso. Así, una técnica ancestral como el mampuesto de ladrillo se convierte en la más accesible en términos de economía de recursos.
La mano de obra experta y el diseño adecuado logran una elegancia y sobriedad donde tradición y tecnología conviven, y la rusticidad del ladrillo dialoga con la contemporaneidad de la fachada vidriada.
Dentro de las posibilidades expresivas del ladrillo, además de los paramentos ortogonales, se desarrolló un límite curvo que acompaña las geometrías sinuosas del circuito de entrenamiento de marcha en la terraza jardín de Planta Baja. Este límite curvo, en las envolventes laterales de salas técnicas, demuestra que el ladrillo no se limita a formas rectas, pudiendo configurar superficies curvas que contrastan con la ortogonalidad.

Comprendemos así que el límite del diseño con el ladrillo lo impone solo la creatividad del diseñador y el ejecutor.



Saber construir otorga libertad para proyectar. Es menester que el arquitecto se empape de la cultura arquitectónica y constructiva local para explotar técnicas maduradas en la región. Esto las convierte en corrientes favorables para establecer el lenguaje del edificio y resolver detalles constructivos, evitando negarlas o desconocerlas, lo cual dificultaría la labor y el resultado, como quien nada a contracorriente sin sensatez ni criterio.

Materia y Luz
A su vez, al igual que en el Hospital Príncipe de Asturias, en los locales que no tienen la posibilidad de ser iluminados de manera natural perimetralmente (en este caso por encontrarse ubicados en Subsuelo), la luz solar es introducida de manera cenital por medio de lucernarios, cualificando los espacios, mejorando su habitabilidad y reduciendo el consumo de energía eléctrica, en consonancia con la búsqueda en el resto del edificio. Este, al orientar todos sus locales hacia el norte y tener esta fachada de vidrio protegida por la celosía armada de ladrillo, recibe todo el tiempo los beneficios de la luz natural, de manera directa e indirecta según sea conveniente en las distintas épocas del año.
Conclusiones
De esta manera, concluimos que, como arquitectos, podemos contribuir a la reducción del consumo energético empleando el sentido común en el diseño. Esto implica atender al diseño de envolventes, estudiar implantación y orientación, aprovechar vientos, y conocer la lógica y tradición de cada materialidad local. Valoramos el aprendizaje histórico sobre la sobreinformación actual. Concibiendo el edificio como un organismo vivo, orientamos las decisiones proyectuales hacia el confort del habitante, reduciendo al máximo el acondicionamiento térmico artificial. Así, desde nuestra disciplina, colaboramos en la construcción de un mundo más confortable, habitable, sostenible y sustentable, estableciendo un compromiso con el medio ambiente y las futuras generaciones.
VJV Arquitectos es un estudio con sólida trayectoria y experiencia en arquitectura hospitalaria, formado por profesionales de destacada trayectoria. La firma se consolidó en 2020 con la incorporación de Salvador María Viale, sumando la experiencia de Santiago Viale Lescano y Juan Manuel Juárez. Esta unión ha permitido abordar proyectos de alta complejidad, posicionándose como referente en el sector.
Santiago Viale Lescano es arquitecto (UNC, 1994), con más de 25 años en arquitectura hospitalaria. Lideró proyectos clave como el Hospital Municipal Príncipe de Asturias, el Centro de Rehabilitación OSSACRA, e hizo intervenciones y ampliaciones en casi todas las áreas del Hospital Privado de Córdoba. Es consultor para empresas europeas y estadounidenses en proyectos hospitalarios. Docente universitario en la UCC, su obra ha sido publicada y premiada.
Juan Manuel Juárez es arquitecto (UNC, 1994). Inició en GGMPU y fue Jefe de Proyectos y de Inspección de Construcción Pública en la Municipalidad de Córdoba (desde 1998). Se unió al estudio de Santiago Viale Lescano en 2007, convirtiéndose en socio especialista en arquitectura hospitalaria. Es Jefe de Trabajos Prácticos en Métodos Constructivos I y II (UCC) desde 2008.
Salvador María Viale es arquitecto (UCC, 2000). Tras trabajar en Becker, Ferrari, Fuentes (Buenos Aires), regresó a Córdoba y se unió al estudio de Santiago Viale Lescano. En 2008 fundó RIVIA SRL, desarrollando proyectos de construcción, residenciales, bancarios y de atención médica. Colabora con firmas de EE. UU. en proyectos residenciales y visualización CG. En 2020, se reincorporó al estudio, formando VJV Arquitectos con Santiago Viale Lescano y Juan Manuel Juárez.
Crédito fotográfico: Gonzalo Viramonte y Roger Berta.




GIPHY App Key not set. Please check settings