FADU UBA AADAIH
Director: Arq. Luciano Monza
Coordinadora: Arq. Corina Passadore
Docentes Taller: Arqs. Liliana Font, Mariana Irigoyen, Eduardo Maestripieri, Luciano Monza, Corina Passadore y Alicia Preide
La arquitectura para la salud, dada su complejidad, requiere un enfoque especializado debido a la multitud de variables que influyen en su diseño y construcción, desde aspectos programáticos y funcionales hasta tecnológicos y sociales.
En respuesta a esta necesidad, la Facultad de Arquitectura, Diseño y Urbanismo (FADU- UBA) en colaboración con AADAIH desarrollan el “Programa de Actualización de Proyecto de Edificios para la Salud, Tipologías Contemporáneas”, destinado a fortalecer las capacidades proyectuales de los profesionales que trabajan en este campo.
El posgrado se centra en la experiencia del proceso de diseño de edificios para la salud, ofreciendo una formación teórico-práctica con metodología de taller, abordando la temática de nuevas tipologías, priorizando las que en la actualidad han tomado mayor visibilidad como los centros para pacientes ambulatorios y para patologías específicas.
Durante los 8 meses (un año académico) de duración se realizan trabajos de investigación sobre edificios similares en distintos lugares del mundo, como paso previo a los 2 trabajos de proyecto: uno de un centro de internación de larga estada y el otro de un centro ambulatorio de complejidad. Cada trabajo práctico se realiza en 2 sitios diferentes con normativas urbanas de distinta densidad, y se estimula el trabajo en equipo por parte del cuerpo docente. Las clases teóricas acompañan las distintas temáticas y especialidades necesarias en cada proyecto.
El Posgrado en Proyecto de Edificios para la Salud tiene como principal objetivo formar profesionales capacitados para enfrentar los desafíos del proyecto de arquitectura en el ámbito de la salud, contribuyendo al desarrollo de soluciones innovadoras y eficientes en este campo en constante evolución, por lo cual se estimula la búsqueda de resoluciones diferentes que enriquezcan las perspectivas de la profesión.
El trabajo del Taller
El proyecto muestra el resultado de un ejercicio proyectual del Posgrado en Proyecto de Edificios para la Salud 2023, donde se aborda el diseño de un Centro Ambulatorio de Complejidad y el desarrollo de sus servicios en base a un programa de necesidades y a un sitio específico.
El programa, de aproximadamente 10.000 m2, incluye consulta externa de adultos y niños, odontología, vacunatorio, imágenes, laboratorio de análisis clínicos, cirugía ambulatoria con hospital de día quirúrgico, hospital de día clínico y rehabilitación física como servicios asistenciales, además de servicios complemntarios.
Se presenta el desafío de resolver los componentes espaciales, funcionales, circulatorios, constructivos y formales, enfatizando criterios de sustentabilidad y humanización, unificando estas temáticas abordadas en el taller.
Se propone para un mismo programa dos localizaciones diferentes (una de media densidad y otra de alta densidad) con el objetivo pedagógico de complementar conocimientos, intercambiando las experiencias y explorando diferentes resoluciones para un mismo problema. En este caso se muestra un trabajo en el sitio de alta densidad.
Esto incentiva la búsqueda de diferentes propuestas entendiendo siempre al edificio como pieza arquitectónica, que por su escala y la naturaleza de sus funciones produce con su implantación un fuerte impacto urbano en dialogo con la ciudad.
Centro de Complejidad para Pacientes Ambulatorios
Arqs. María Candelaria Molina y Mariano Tarrab
El Centro para Pacientes Ambulatorios CODO se implanta en la ciudad de Buenos Aires, en una zona de alta densidad, en la esquina de las avenidas Corrientes y Dorrego, frente al Parque Los Andes. La propuesta logra dar respuesta al programa de necesidades, incorporando los recursos que aporta el entorno, completando el tejido existente y articulando el espacio público.
Las alturas permitidas, posibilitan un edificio en torre con una ubicación estratégica que brinda visuales hacia el parque Los Andes y al campanario posterior, enriqueciendo los espacios de espera. A su vez, las dos avenidas en esquina estructuran la planta baja casi en su totalidad como pública.
Programáticamente, se definen los servicios en relación a la proporción adecuada que debe tener el edificio propuesto, liberado de sus medianeras con un zócalo, basamento y torre.
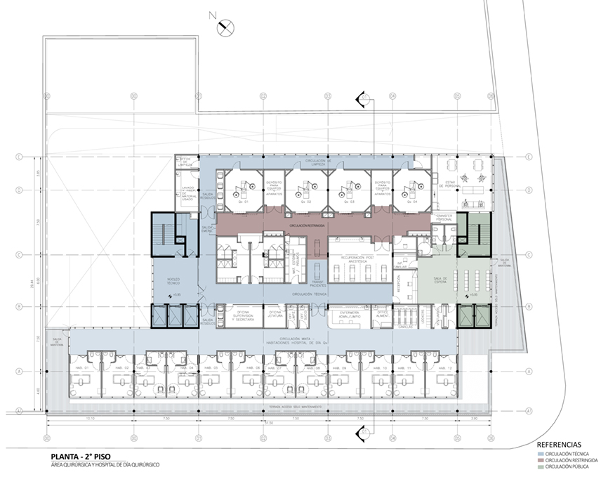
Zócalo: hall público, auditorio y diagnóstico por imágenes (equipos pesados), y calle de servicios
Basamento: bloque quirúrgico
Torre: en su vinculación con el basamento, se desarrolla el área de rehabilitación física y el área de personal, aprovechando sus expansiones sobre la terraza; seguida por servicios de consultorios, hospital de día y administración. Se desarrollan con la estructura funcional y espacial que posibilitan los núcleos de circulación vertical técnico y público en los extremos, los apoyos técnicos centrales, los locales asistenciales repetitivos y las esperas hacia el exterior.
Las orientaciones determinan las pieles que tendrá el edificio: parasoles verticales hacia el suroeste y aleros hacia el noreste.
La distribución de las plantas y sus circulaciones, posibilita el funcionamiento de distintos espacios asistenciales y administrativos.
La intersección de las avenidas Corrientes y Dorrego, muestra el edificio en relación a la escala urbana. Se destacan sus parasoles verticales pasantes orientados al suroeste, su franja horizontal de basamento, y su zócalo permeable de ingreso. El ingreso de luz en las circulaciones verticales, ilumina en cada nivel los apoyos técnicos horizontales.
Desde Av. Dorrego se percibe mayor permeabilidad de asoleamiento en la fachada, destacándose los parasoles horizontales, orientados al noreste.
Emplazamiento de la terraza del basamento en relación a las alturas vecinas que logra la conexión visual hacia el parque y el campanario.
Ingreso peatonal jerarquizando la esquina.

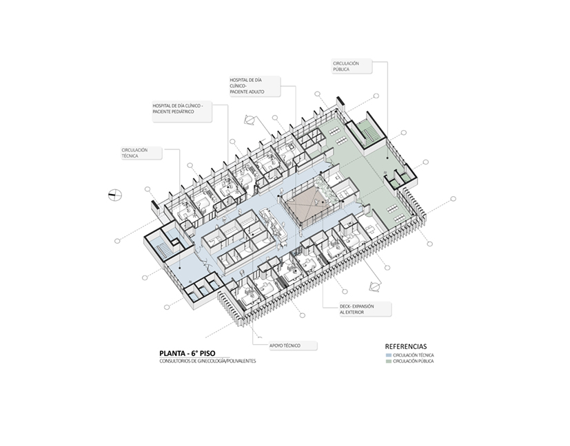
Hospital de día Clínico funcionalmente dividido en dos tiras de habitaciones: una para pacientes pediátricos y otra para adultos, con enfermería central para mayor amplitud visual y apoyo técnico en su parte posterior. En este nivel se genera un patio de luz central, que sirve de expansión para personal y pacientes.

Puesto de Observación de enfermería con visuales hacia las habitaciones e ingreso de luz del deck de expansión.

Habitación de Hospital de día pediátrico. Se priorizó la calidad espacial en beneficio de la recuperación del paciente, permitiendo la permeabilidad visual y rápido acceso, con visuales al exterior y diseño acorde a las edades de los usuarios.







María Candelaria Molina (27) es arquitecta egresada de la Universidad Nacional de Córdoba (UNC) con especialización en Diseño de Edificios para la Salud de la Universidad de Buenos Aires (UBA) – FADU, en el año 2023. Actualmente trabaja como colaboradora en el Estudio de Arquitectura del Arq. Santiago Viale (VJV Arquitectura), en la ciudad de Córdoba.
Mariano Tarrab (46) es arquitecto egresado de la Universidad Nacional de Rosario (UNR) y especialista en diseño de Recurso Físico en salud desde 2004. Realizó el Posgrado en “Construction Management”en 2008 (R d’Aparelladors, Tècnics i Enginyers de Barcelona (APABCN) y la actualización en Diseño de Edificios para la Salud de la Universidad de Buenos Aires (UBA) – FADU, en el año 2023. Actualmente trabaja como arquitecto proyectista en la Dirección de Arquitectura Hospitalaria de la Secretaría de Salud Pública de la Municipalidad de Rosario.



GIPHY App Key not set. Please check settings