Instituto de Cardiología de Corrientes “Juana Francisca Cabral”
El Instituto de Cardiología de Corrientes (ICC) es un hospital monovalente que se destaca como un referente en salud cardiovascular en la ciudad de Corrientes y la región desde su creación en 1986. Ubicado estratégicamente en el centro de la ciudad, ocupa un terreno de 9.498 m² con una construcción de 16.650 m² distribuida en 4 edificios y 6 niveles, incluyendo subsuelo, planta baja, 4 pisos y una azotea técnica. En 2019, el ICC obtuvo su primera acreditación por ITAES (Instituto Técnico para la Acreditación de Establecimientos de Salud), convirtiéndose en el primer centro de salud del interior de Argentina en lograrlo. En febrero de 2024, se re acreditó por 3 años más, ratificando su compromiso con la excelencia en la atención médica.
Para impulsar la mejora continua en el diseño y en la gestión de sus instalaciones, el ICC estableció en 2016 una Residencia de Arquitectura Hospitalaria. Esta iniciativa capacita a arquitectos en el diseño y gestión del recurso físico en salud, alineándose con el Plan Maestro de Crecimiento de la institución y los principios generadores de cambio para el hospital del futuro.
En 2022, la Residencia de Arquitectura Hospitalaria del ICC llevó a cabo un proyecto emblemático al diseñar y construir el nuevo servicio de Recuperación Cardiovascular Pediátrico, demostrando un compromiso continuo con la innovación y la calidad.
El programa médico-arquitectónico y los desafíos del proyecto
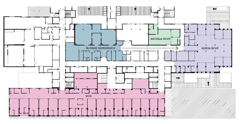
Este servicio se localizó en el segundo piso de la institución, en relación directa al bloque quirúrgico, ocupando el área que pertenecía a la Unidad de Cuidados Intensivos Coronarios (UCIC), que en el marco del Plan Maestro de la institución fue trasladada a una nueva área.
Todo profesional de la arquitectura o ingeniería que trabaja en un hospital dentro de un Plan Regulador Arquitectónico sabe que se trata de un edificio vivo, que se encuentra en constante cambio y crecimiento. Esto exige que la lógica a la hora de construir esté marcada por la flexibilidad, contemplando traslados de servicios.
En el 2019, en el Instituto de Cardiología de Corrientes se construyó un nuevo edificio donde se reubicaron y ampliaron las unidades asistenciales: Internación General, Unidad de Cuidados Intensivos Coronarios y Unidad de Terapia Intensiva. Esto liberó superficie en el edificio original, con la perspectiva de ampliar o realizar nuevos servicios. En el espacio que ocupaba la antigua UCIC se construye entonces la nueva Recuperación Cardiovascular Pediátrica (RCVP).

El Instituto contaba con una antigua RCVP de 134m². Aunque el servicio se inauguró en 2010 y experimentó un crecimiento continuo en recurso humano y demanda asistencial, llegando a realizar más de 200 cirugías cardiovasculares por año, este crecimiento no se reflejó en la infraestructura del servicio. La planta física estaba fragmentada y no daba respuesta a requerimientos funcionales y tecnológicos necesarios. Anteriormente, el servicio disponía de 5 camas en una sala general (una destinada a aislados), con deficiencias en las áreas de apoyo. La antigua RCVP contaba con un único office de enfermería cerrado, sin una clara separación entre áreas limpias y sucias, además de un office de limpieza. Para el personal médico, se disponía de una sala de reuniones pequeña, un baño y un office, junto con un dormitorio de guardia.
En el caso de los familiares, se ubicaban junto a la cama del paciente, sin un espacio privado para conversar con el personal asistencial y en estrecha cercanía con los demás pacientes. Las instalaciones presentaban un notable deterioro, careciendo por completo de entrada de luz natural. Además, se realizaron mediciones de ruido en la sala, las cuales arrojaron niveles superiores a los recomendados por la Sociedad de Pediatría. En resumen, la arquitectura distaba considerablemente de conceptos como la humanización o la empatía hacia los usuarios.

Frente a esta realidad, el Instituto decide ampliar el servicio proyectando un sector que triplica la superficie anterior (374m²), mejorando la calidad espacial tanto para los pacientes como el personal. Se aumentó la capacidad a 8 camas (2 para aislados), cada una en habitaciones privadas que garantizan el confort y la acústica adecuados.
La construcción
Para abordar la construcción de la nueva RCVP, el principal desafío fue la proximidad al bloque quirúrgico existente. Dado que los servicios adyacentes debían mantenerse operativos durante el proceso de obra, se implementaron medidas para aislar el polvo y minimizar los ruidos generados. Se delimitó la zona de trabajo con selles herméticos. Estos se materializaron en una estructura de perfiles galvanizados fijados al piso con cinta doble faz, a fin de no dañar los espacios ajenos a la obra. Se incorporaron aislaciones de poliestireno expandido y polietileno de 200 micrones, y los tabiques se revistieron en placas de roca de yeso, cuyas juntas se sellaron con cinta adhesiva de PVC.
El retiro de los escombros se llevó a cabo mediante una tolva exterior para evitar la circulación de obreros por las instalaciones del hospital, quienes accedían a la obra a través de andamios exteriores. Estas medidas contribuyeron a mantener la operatividad de los servicios contiguos y a garantizar un entorno seguro durante el proceso de construcción.
Se demolieron muros de mampostería y cielorrasos de metal desplegado, se desmontaron tabiques divisores de boxes y se abrieron vanos para incorporar luz natural. Con la planta libre, se proyectó la nueva RCVP, ubicando las 8 habitaciones en torno a una estación de enfermería central y teniendo en cuenta los requerimientos establecidos en el Programa Nacional de Garantía de Calidad de la Atención Médica y el Manual de Acreditación de Establecimientos de Atención de Agudos del ITAES.
Se utilizó el entrepiso técnico superior existente para el tendido de las instalaciones, facilitando el futuro mantenimiento sin ingresar al área crítica asistencial. Se reemplazaron todas las instalaciones existentes de: provisión de agua, desagües cloacales y pluviales, gases medicinales, climatización, iluminación, electricidad, datos y señales débiles.
Asimismo, se implementaron mejoras significativas en la seguridad y comodidad de los espacios. Estos incluyen un sistema de ventilación centralizada y acondicionamiento de aire filtrado, detectores de incendios, cámaras de vigilancia, pisos vinílicos (conductivos en las habitaciones), y la instalación de puertas automáticas. Estas medidas contribuyen a crear un entorno más seguro y funcional tanto para el personal como para los pacientes.



Estructura funcional de la nueva RCVP
El nuevo espacio se configura en tres circulaciones:
- Pasillo central restringido: vincula a la sala con el Bloque Quirúrgico, ubicado en el mismo nivel.
- Pasillo técnico: contiene a los apoyos de enfermería y de limpieza.
- Pasillo de visitas: con acceso a la atención familiar, que actúa como transferencia.


Las 8 habitaciones individuales fueron construidas en torno a la central de enfermería, que se destaca del resto de la sala por su mobiliario, altura de cielorraso y color del piso vinílico. Cuenta con cinco puestos de trabajo, telemetría y cámaras que refuerzan el control de las habitaciones. Sumado a esto, se ubicaron cuatro estaciones de lavados de manos distribuidas en la sala. También se dedicó un espacio para estacionamiento de equipos y carros de paro (uno cada cuatro pacientes) accesibles desde todos los puntos de la sala. Además, se aumentaron considerablemente los espacios de apoyo diferenciados según su función, se agregó un sector de insumos y oficinas de jefatura médica y de enfermería. El office limpio de enfermería para preparación de medicamentos, cuenta con un paño fijo vidriado que permite observar la sala. Esto fue diseñado en conjunto con el personal de enfermería, para quienes resultaba abrumador el cambio de escala luego de 13 años trabajando en un espacio muy pequeño. Para el personal médico, se construyó una habitación de guardia con office y sanitario, sumado a oficinas y salas de reuniones.




Las habitaciones se diseñaron incluyendo espacio para la permanencia de la familia. La luz natural ingresa en todas las habitaciones mediante paños fijos ubicados en la cabecera de las camas. La iluminación artificial se diseñó y es generada por 3 circuitos diferenciados: iluminación directa en el centro del cielorraso, para curaciones o examinaciones; iluminación difusa en los laterales, para evitar el deslumbramiento del paciente que se encuentra acostado en la cama; y luz vigía para garantizar la visibilidad nocturna en caso de ser necesario, sin afectar el descanso del paciente. Entre las habitaciones contiguas también se colocaron paños fijos que permiten el control visual del personal asistencial en todo momento.




Para la familia, se incorporaron al programa médico-arquitectónico un lactario y atención al familiar, como parte del enfoque centrado en una unidad a puertas abiertas. La intención es involucrar a los padres en el cuidado y recuperación, o incluso en el acompañamiento en el final de la vida de los pequeños pacientes.
La atención al familiar funciona no solo como sala de espera, sino también como un espacio confortable donde la familia puede dialogar de manera privada con el personal de salud. Esto antes ocurría en los pasillos del hospital o al pie de las camas, ya que no se disponía de un espacio que garantice la privacidad y el confort de la familia. Además, el espacio funciona como transferencia de ingreso a la sala, contando con un lavado de manos exclusivo para visitas, y lockers individualizados para cada cama. La incorporación un lactario es para que las madres tengan un lugar confortable para extracción de leche. Al igual que en la atención al familiar, se utilizaron colores asociados a la tranquilidad y se incorporaron elementos artísticos.


Incorporación del Arte
El arte y el color jugaron un papel protagonista en el proyecto. Se optó por realizar un diseño personalizado que resalte la fauna y flora local de la Provincia de Corrientes, de manera que los pacientes puedan reconocer elementos con los que están familiarizados.
Se eligió la temática Esteros del Iberá, uno de los reservorios de agua más grandes del mundo, y área protegida de la provincia. Se trata de una red de humedales formada por los antiguos cauces del Río Paraná, hábitat de animales como carpinchos, yacarés, aguará guazú (o zorro grande), yaguaretés, y más de 350 especies de aves, entre otros. En total hay más de 800 especies de fauna macroscópica
Se realizaron bocetos a mano alzada en base a imágenes, se digitalizaron y se imprimieron en vinilo, esta técnica no solo mejora la limpieza de las superficies, sino que también cumple con rigurosas condiciones infectológicas, garantizando un entorno seguro para los pacientes. En las imágenes se aprecia el proceso creativo de algunos de los personajes creados.
Las islas verdes del piso vinílico representan los camalotes del Iberá, y los colores de cabeceras de camas representan el cielo (naranja para el atardecer y celeste para el día). A su vez, se utilizaron tonos que simulan madera en el mobiliario y formas curvas, para evocar la calidez de la naturaleza.
Los accesos de pacientes y familiares, lactario y atención al familiar cuentan con ilustraciones de árboles autóctonos como Lapacho y Palo borracho, contribuyendo a crear un ambiente acogedor. Además, se incorporaron diversas especies de pájaros autóctonos en paños fijos y en los árboles.
Los elementos intangibles como la luz natural en las habitaciones o el aislamiento del ruido con el uso de materiales específicos ayudan a regular el ritmo circadiano de los pacientes, creando un ambiente tranquilo para la recuperación.
Se establecieron recorridos claros, diferenciación de áreas y un contacto visual amable para una experiencia más agradable, enfatizando el concepto de proxemia aplicado en la arquitectura.
Se humanizó el ambiente hospitalario, que suele percibirse como hostil y generar rechazo o miedo en los pacientes, logrando un ambiente cálido y acogedor que reduce la ansiedad y la percepción del dolor contribuyendo de esta manera a mejorar la experiencia del paciente y su familia.

Reflexión Final
La arquitectura hospitalaria actual se ha convertido en un espacio donde convergen la funcionalidad y el cuidado integral del paciente. Elementos de neuroarquitectura como la luz, el color, el arte o la calidez de los espacios y la inclusión de la familia como parte fundamental del proceso terapéutico son pilares en el diseño arquitectónico centrado en el bienestar del paciente. Sin embargo, para alcanzar un verdadero cambio en la atención médica, no podemos obviar la importancia del personal asistencial y del mantenimiento técnico, que son fundamentales para el correcto funcionamiento del servicio, como así también considerar en el proceso proyectual los elementos generadores de cambio del hospital del futuro.

Este hospital se caracteriza por ser un edificio flexible, que permite una rápida reconfiguración de las áreas según las necesidades. Además, ofrece un entorno humanizado, centrado en el paciente y en la prevención de enfermedades. El diseño para el control de infecciones y basado en la evidencia garantiza la seguridad y eficacia de las instalaciones. La integración del diseño biofílico y áreas de recreación también juega un papel fundamental en la recuperación de los pacientes y en la creación de entornos saludables. La posibilidad de expansión y el diseño de instalaciones que favorecen la calidad del aire son aspectos claves para crear entornos saludables y sostenibles.
En conclusión, el diseño hospitalario del futuro debe ser un equilibrio entre la ciencia y el arte, donde cada elemento contribuya a crear un ambiente que no solo cure el cuerpo, sino también el espíritu, y que se adapte a las necesidades y desafíos de la salud actual.
FICHA TÉCNICA
Obra: Nuevo Servicio de Recuperación Cardiovascular Pediátrico del Instituto de Cardiología de Corrientes
Ubicación: Ciudad de Corrientes, Argentina
Proyecto: Arq. Fernando Ibarrola Leiva y Residencia de Arquitectura Hospitalaria del ICC
Dirección de Obra: Arq. Camila de Cerchio, Arq. Diego Arce y Residencia de Arquitectura Hospitalaria del ICC
Superficie: 374 m2
Proyecto: Año 2022
Construcción: julio 2022 a mayo 2023
Creación de Ilustraciones: Arq. Diego Arce
Digitalización de Ilustraciones: Arq. Camila De Cerchio
Fotos: Residencia de Arquitectura Hospitalaria del ICC
Fernando Ibarrola Leiva: miembro de AADAIH, arquitecto responsable de proyectos y dirección de obras del Instituto de Cardiología de Corrientes e instructor de su Residencia de Arquitectura Hospitalaria, autor de obras hospitalarias en España y en la región Nordeste argentina. Diplomado en evaluación de calidad de las organizaciones de salud por ITAES y UCASAL.
Camila De Cerchio: arquitecta especialista en arquitectura hospitalaria. Graduada de la Residencia de Arquitectura Hospitalaria del Instituto de Cardiología de Corrientes. Coautora de publicaciones en Hospitecnia e ITAES. Diplomada en evaluación de calidad de las organizaciones de salud por ITAES y UCASAL.
Diego Arce: artista plástico. arquitecto especialista en arquitectura hospitalaria. Graduado de la Residencia de Arquitectura Hospitalaria del Instituto de Cardiología de Corrientes. Coautor de publicaciones en Hospitecnia. Diplomado en evaluación de calidad de las organizaciones de salud por ITAES y UCASAL.
Contactos:
arquitectoibarrola@gmail.com
decerchio.camila@gmail.com
josediegoarce@gmail.com



GIPHY App Key not set. Please check settings