Dirección General de Docencia, Investigación y Desarrollo Profesional
Instructoría: arquitectos Daiana Cora, Andrea Perrando y María E. Rial.
Jefatura de Residencia: Arq. Génesis Pichén Vigo.
Residentes: arquitectos R1: Ian Correa, Cintia Domínguez, Hernán Gómez, Emilia Hugé, Mauricio J. Walsh. – R2: Natalia R. Abraham, Jesica R. Gómez, Sabrina Robles Morguen. – R3: Pamela C. Ciccone, Pamela, Valeria S. Marini, Elizabeth N. Paz.
residenciaarqhospitalaria@gmail.com
Dirección General de Recursos Físicos en Salud
Dirección General: Arq. Mercedes Di Loreto.
Gerencia de Proyectos, Obras e Instalaciones: Arq. Ana Paula Scordo.
La Residencia de Arquitectura Hospitalaria es una especialización dentro del marco de las Residencias de Apoyo al Equipo de Salud dependiente de la Dirección General de Docencia, Investigación y Desarrollo Profesional (DGDIyDP) del Ministerio de Salud del Gobierno de la Ciudad Autónoma de Buenos Aires.
Destinada a profesionales arquitectos/as, la capacitación es remunerada, con nivel de posgrado y tiene una duración de 3 años. El escenario de trabajo es la red de salud pública de la CABA, que cuenta con 35 Hospitales de diferentes niveles de complejidad, Centros de Atención Primaria y otros efectores de la red.
Esta especialización requiere de una fuerte capacitación práctica y académica, orientada a dar respuesta a la constante demanda de los diferentes efectores de salud, con una mirada integral del sistema.
Se implementan charlas de capacitación permanente, puestas en común, encuentros interdisciplinarios, trabajos de investigación y rotaciones para la formación en áreas específicas. La capacitación culmina con la elaboración del anteproyecto de un Plan Maestro Integral de un efector de la red, en modalidad de taller vertical.
El objetivo de las rotaciones prácticas en la Dirección General de Recursos Físicos (DGRFisS) perteneciente al Ministerio de Salud del GCBA, consiste en la colaboración dentro de sus equipos, tanto en el desarrollo de proyectos como de inspección de obra. En este marco, los trabajos seleccionados para la comprensión del alcance de la formación de especialidad y su contexto son: Centro Regional de Hemoterapia y Nuevo Edificio de Consultorios Externos para el Hospital General de Agudos Parmenio Piñero.
Nuevo Edificio de Consultorios Externos Hospital General de Agudos P. Piñero

Ubicación: Av. Varela 1301, CABA
Año de proyecto: 2022 – 2023
Año de construcción: 2023 – actualidad
Superficie: 2.177m2 cubiertos
Equipo de proyecto/obra Residentes: Abraham, Natalia / Ciccone, Pamela / Gomez, Jesica.
Equipo de proyecto DGRFisS: arqs. Bouzón, M. T. / Galesio, M. E. / López Stanganello, D. / Perrupato, R. / Perugini, N. / Sanchez, L. / Villardebo, R. // Ings. Corsaro, L. / Inzunza, M.
El proyecto surge de la necesidad de relocalización del servicio de Consulta Externa y de consolidar en un único sector la atención programada ambulatoria que actualmente se encuentra distribuida en diferentes pabellones.
Se concibe un nuevo edificio, que se implanta como un volumen exento en un área vacante del predio del Hospital y en relación directa con otras áreas ambulatorias del Hospital y su vinculación con las vías de acceso al establecimiento.

El proyecto se desarrolla en planta baja y primer piso, con un acotado subsuelo y una azotea para infraestructura y terraza verde, conformando un volumen único con un patio-jardín longitudinal en su interior, alrededor del cual se disponen dos sectores de consultorios en los cuales se privilegia la iluminación y ventilación natural de los locales.

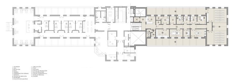
Planta baja


En la resolución funcional se plantea una diferenciación en dos áreas claramente definidas a ambos lados de los consultorios: un área pública, donde se ubican el acceso, los núcleos verticales, las esperas y el mesón de admisión y, en el extremo opuesto, una circulación técnica con áreas de apoyo médico, de enfermería, office limpio, usado, estar de personal/ sala de informes, vestuarios, sanitarios y áreas técnicas y de servicios.





Centro Regional de Hemoterapia

Ubicación: Av. Combatientes de Malvinas 3002, CABA
Año de proyecto: 2022
Año de construcción: 2023 – actualidad
Superficie: 2.386 m2 cubiertos
Equipo de proyecto/obra Residentes: Jesica Gómez, Valeria Marini, Sabrina Morguen Robles, Elizabeth Paz, Andrea Perrando..
Equipo de proyecto DGRFisS: Arqs. M. T. Bouzón, M. E. Galesio, V. Núñez, R. Perrupato, L. Sánchez, C. Steinhardt, R. Villardebo. Ings. L. Corsaro, M. Inzunza, E. Schamberger.
El proyecto surge de la necesidad de centralizar los procesos de extracción, procesamiento, almacenamiento y distribución de la sangre y hemocomponentes, para garantizar el control y cumplimiento de las condiciones de bioseguridad, la optimización de los insumos y la garantía de calidad.

Contempla resolver áreas de extracción para donación de sangre, recepción de muestras provenientes de las colectas externas y la incorporación de laboratorios tendientes a la centralización del análisis, procesamiento, fraccionamiento y almacenamiento de la sangre, para la posterior distribución de los hemoderivados a los distintos efectores que así lo requieran dentro de la red de salud de la Ciudad.




El proyecto es una remodelación integral, sin ampliación de superficie, que contempla una recuperación de uso y puesta en valor del edificio existente en su conjunto que cuenta con protección patrimonial del tipo “Cautelar”.

Edificio existente
En planta baja se resuelve sobre el ala sur el programa del donante voluntario y en el ala norte el área técnica de recepción, entrega de sangre y depósitos, que contará con un estacionamiento de vehículos para carga y descarga contiguo al respectivo acceso.

Recepción y sala de espera en planta baja


En el primer piso se ubican los diferentes laboratorios y en el entrepiso las áreas de apoyo médico – administrativas y de docencia.

Conclusión
En las intervenciones presentadas, los residentes participantes formaron parte del equipo de proyecto y de seguimiento de obra de la DGRFISS, experimentando el proceso de desarrollo de un proyecto en su totalidad, desde la idea primigenia hasta su materialización.
Dentro de la rotación en el área de Proyecto, los residentes tienen participación en el análisis del programa médico arquitectónico, en el proceso de diseño hasta la elaboración del anteproyecto, incorporando tecnologías e interactuando con diferentes asesores de infraestructura, logística de obra y desarrollo de documentación licitatoria y especificaciones técnicas.
Dentro de la rotación en el área de Obra, los residentes participan en la inspección, colaborando en la supervisión del cumplimiento del diseño y especificaciones del pliego licitatorio, en el control de los tiempos parciales y globales del Plan de Trabajos, en la detección y resolución de imprevistos y en tareas de administración de obra.
De esta forma, los residentes adquieren los conocimientos necesarios para la formación de un especialista en Arquitectura Hospitalaria como profesional integral capaz de abordar problemáticas de programación, planificación, proyectos y gestión del recurso físico en salud, interactuando con equipos interdisciplinarios médicos y de diferentes especialidades técnicas para la resolución de demandas actuales, futuras y de nuevos modelos de atención.
Teresa Bouzon es arquitecta, Especialista en Planificación de Recursos Físicos en Salud – FADU – UBA. Coordinadora General de la Residencia de Arquitectura Hospitalaria DGDIYDP, Ministerio de Salud, GCABA. Subgerente Operativa de Proyectos, Dirección General de Recursos Físicos en Salud DGRFisS, Ministerio de Salud, GCABA.
mbouzon@buenosaires.gob.ar


GIPHY App Key not set. Please check settings