En la historia de nuestro Estudio AFS ARQUITECTOS, se inscriben una sucesión de proyectos de la obra social de UPCN, que además de configurar una red integrada, representaron, en sus respectivas localizaciones, notables avances en la calidad de atención al paciente.
Las premisas comunes a estos proyectos fueron:
El respeto por el sitio y el cuidado del impacto urbano.
La funcionalidad del diseño para acompañar la seguridad y la eficiencia de los procesos médicos.
La búsqueda de soluciones sustentables.
La propuesta de espacios humanizados, adecuados al bienestar del paciente y al trabajo del personal.
Comenzamos en 1997 con el Instituto Quirúrgico del Callao (IQC), edificio de comienzos del siglo pasado que fue integralmente reciclado para albergar un centro ambulatorio, aún hoy vigente. Centro pionero en la cirugía de media y alta complejidad, incluye todas las prácticas de diagnóstico y tratamiento en un complejo urbano de gran compacidad. Un desarrollo informático de avanzada, aplicado a la resolución eficiente de los procesos, y un equipamiento de última tecnología permitieron superar las limitaciones de una planta física reducida.
Desde el diseño la propuesta fue resolver su funcionalidad mediante una reforma integral del interior, preservando la silueta del edificio tradicional. Su majestuosa cúpula continua hoy marcando su presencia en el paisaje urbano de este barrio cercano al Congreso,



A una serie de otros efectores desarrollados en este periodo se suma en el año 2017 el Sanatorio Anchorena San Martín, ubicado en una zona en desarrollo urbano de dicho municipio, integrándo su volumetría al concierto de torres residenciales escalonadas a lo largo del ensanche de la avenida Perdriel. Este proyecto respondió a la demanda de atención de un vasto sector del conurbano, tanto en el área de internación, resuelta en dos torres implantadas en un jardín, como en atención ambulatoria propuesta en un edificio a escala barrial de baja altura.
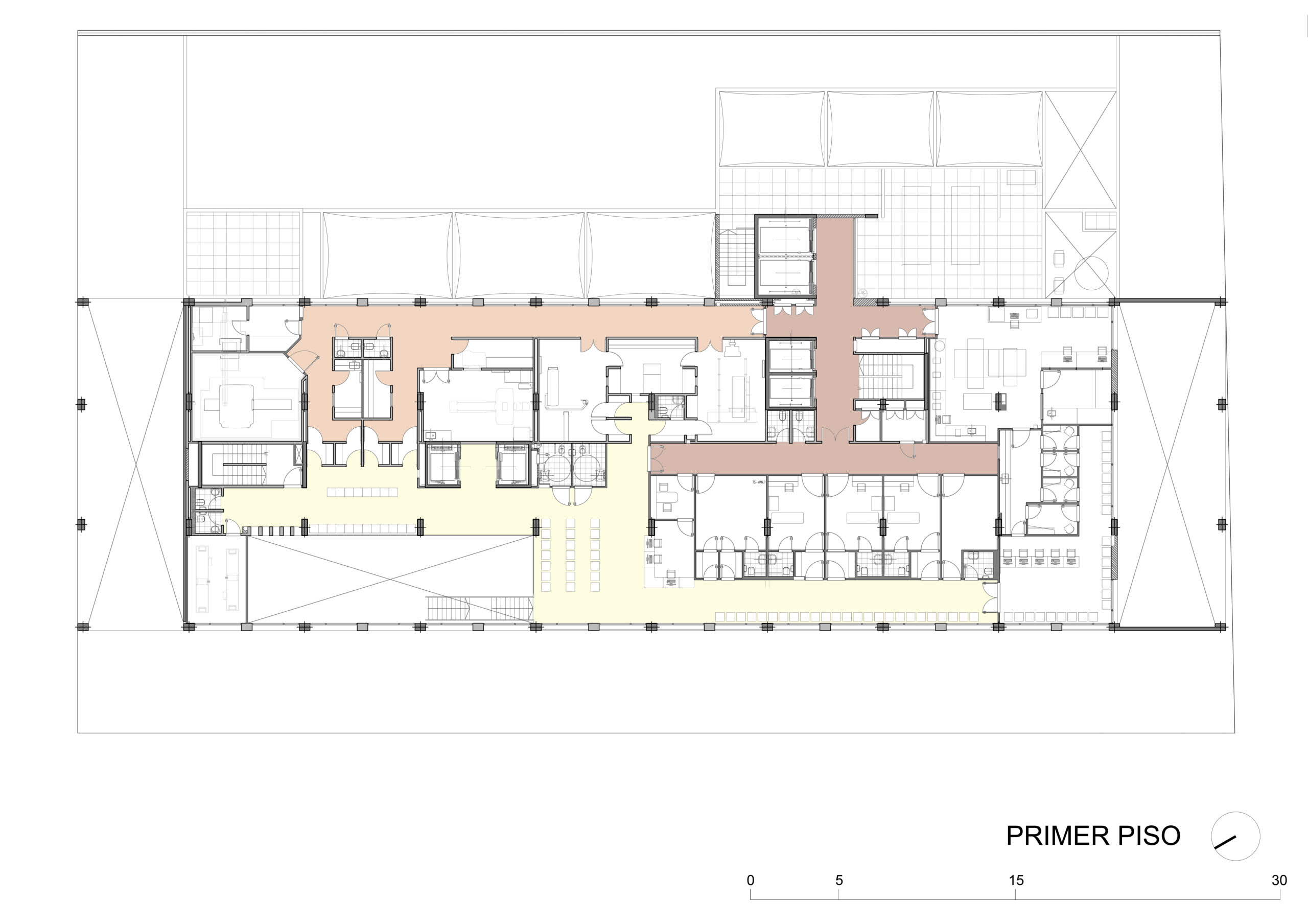
Caracterizan a este edificio la facil accesibilidad, publica por un frente y técnica por el opuesto, con estacionamientos diferenciados, un basamento que sintetiza el mayor movimiento de personas, incluyendo los servicios de guardia e imágenes en planta baja, cirugía en primer piso, un segundo piso de transición con terrazas verdes, cafetería, aula y oficinas.
A partir de allí se escalonan los seis pisos de internación en un clima recogido y sereno con excelentes vistas al verde.





Entre los años 2018 y 2021 se desarrolló un emprendimiento en el polo geográfico opuesto, en Avellaneda, el actual Sanatorio Anchorena Itoiz. Esta nueva torre en forma de L, apuntó a fortalecer y ampliar una institución local de referencia, cohesionando edificios dispersos en la manzana. Hoy, habiéndose terminado la torre de Internación, Centro Obstétrico y Cirugía, se encuentra en ejecución la segunda etapa que incluye la ampliación de la Guardia, Imagenes, Laboratorio y Consulta Externa en un basamento integrador con accesos diferenciados por tres arterias.




Recientemente inaugurado el Sanatorio Anchorena Zárate es un nuevo hito en la sucesión de emprendimientos de UPCN, configurando por su ubicación física y desarrollo tecnológico un sensible aporte al cuidado de la Salud, en una zona con fuertes demandas insatisfechas.
Un esqueleto de hormigón y un anteproyecto hospitalario previo fueron la base del nuevo proyecto cuya imagen surge en un área portuaria, con la espectacular imagen del puente Zárate-Brazo Largo de fondo, implantado en una zona casi abandonada de viejos frigoríficos, que hoy se han convertido en un capítulo de nuestra historia local.




El nuevo edificio presenta una silueta monolítica con tratamiento de parasoles horizontales en el frente norte y verticales en el frente oeste, una imagen sintética en un ámbito en transformación, un hito referencial para la comunidad.
Respecto a los accesos, se mantuvo la clara diferenciación entre el frente público y el técnico, hacia dos calles diferentes y opuestas. Del lado técnico, se dispuso una playa de ambulancias con ingreso directo para pacientes transportados hacia la observación de guardia y shockroom, más una entrada unificada a la playa de carga y descarga, el estacionamiento e ingreso de personal, el abastecimiento en general y la salida de residuos.
Del lado público, se unificó el ingreso de pacientes ambulatorios a guardia e imágenes con acompañantes y visitantes a través de un hall en doble altura que colabora en la orientación del paciente, proporcionándole un clima de acogida. En cuanto a las circulaciones verticales, se mantuvieron los dos ascensores de público con su escalera protegida contra incendio y se amplió el núcleo técnico con un cuerpo agregado, acentuando la diferenciación público-técnico, limpio- usado.




El nuevo proyecto buscó privilegiar el acceso a las visuales y la luz natural, llevando hacia el perímetro a la mayoría de los espacios de atención, las esperas de público y los estares de personal. Hacia el centro de la planta se ubicaron espacios de apoyo y servicio, sanitarios, offices y otros.
La centralización de los servicios de apoyo y la ubicación de las recepciones y/o enfermerías en las llegadas a piso también colaboran con la optimización del recurso humano.
Entre la planta baja y el primer piso dedicado a diagnóstico, laboratorio e imágenes, se concentra el mayor flujo de público ambulatorio, reservando los cuatro niveles siguientes para Maternidad, Cirugía, Cardiología, Cuidados Intensivos e Internación General de 68m camas. El sexto y último piso fue reservado para cafetería y comedores, auditorio, oficinas y servicios de apoyo optimizando así la percepción del entorno circundante.



Para mejorar la eficiencia energética, además del diseño de parasoles, se instalaron dos unidades manejadoras que realizan recuperación de calor entre las inyecciones y extracciones de aire, y se utilizaron sistemas VRF de última generación también con recuperación de calor.
El edificio cuenta con un sistema de tubo neumático que une las principales enfermerías con los servicios de Laboratorio y Farmacia, y se instalaron sistemas de Control de Accesos, CCTV para seguridad y monitoreo médico, Detección de Incendio, Sistema de llamado de enfermeras totalmente programables y un BMS para la gestión del mantenimiento.
De esta forma, un programa médico arquitectónico de unos 9.400 m2 y 104 camas totales se resuelve en planta baja y 6 pisos, producto de un ajustado análisis del funcionamiento de cada nivel y de sus circulaciones verticales y horizontales.
Pasillos y halles amplios, sin interferencias, conectan los locales fluidamente, logrando un conjunto diáfano y luminoso, que contribuye a la orientación y el bienestar de pacientes y personal.
El valor de la continuidad
El desarrollo sostenido a lo largo de 25 años, de esta red de centros de Salud, nos ha permitido evaluar a través del tiempo el comportamiento de distintos esquemas funcionales, sistemas constructivos, materiales, y equipos, confrontándolos con distintas realidades y situaciones.
Desde la pura abstracción hasta la concreta experiencia se plantean las distintas historias de este crecimiento mantenido en el tiempo con los diferentes actores de cada proyecto y de cada obra, aciertos y también desaciertos, han contribuido a orientar el complejo camino de esta Arquitectura para la Salud hacia una oferta más humanista, más sustentable y más equitativa cada día.
Javier Sartorio es arquitecto FADU-UBA. Miembro de AFS Arquitectos desde 1994 y socio titular desde 2003. Miembro del Centro de Investigación Hábitat y Energía y profesor de la FADU, UBA, en grado y posgrado, desde 1994. Miembro AADAIH y profesor en diferentes diplomaturas dictadas por la Asociación desde 2017. Especialista en Diseño Bioambiental y Arquitectura Sustentable, ha desarrollado pasantías de investigación en Canadá y España, y proyectos pioneros en este campo.


GIPHY App Key not set. Please check settings