El sistema público de salud de nuestro país está constituido por una serie de efectores, que tiene dependencia administrativa de nivel nacional, provincial o municipal. Los mismos constituyen un patrimonio arquitectónico que se fue creando a medida que las ciudades y comunidades consolidaron su trama urbana.
La consecuencia de este proceso de crecimiento de la población y surgimiento de los sistemas de salud locales, motivo el incremento de la infraestructura hospitalaria, constituida por edificios de diferentes periodos históricos que fueron aportando variedad de tipologías arquitectónicas de valores estéticos también diversos, pero que sin embrago, muchos de ellos, conservan un valor simbólico dentro de la comunidad que se encuentran.
El motivo quizás sea el “lugar “donde fueron construidos, entendiendo este concepto como espacio urbano y simbólico de una ciudad, y la apropiación que el usuario hace del mismo, teniendo en cuenta que en los espacios de un hospital transcurren, en general, los actos más importantes de la vida de los seres humanos que son nacer y morir.
En este marco el Estudio desarrolló el Plan Maestro de dos hospitales municipales, que implicó el reordenamiento y adecuación de la infraestructura edilicia respetando la tipología original, la implantación urbana y la imagen simbólica para la Comunidad de cada uno de ellos.
Se trata del Hospital Municipal Bernardo Houssay de Vicente López y el Hospital Municipal Nuestra Señora de Luján, instituciones emblemáticas en sus jurisdicciones y de alto reconocimiento y valorización por parte de las comunidades donde se encuentran.
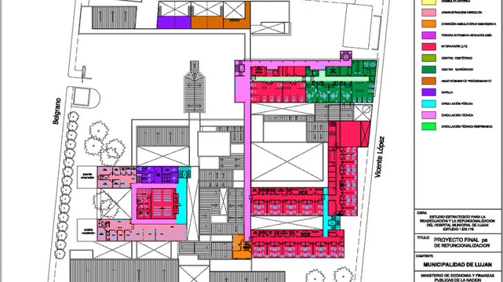
Hospital Municipal Nuestra Señora de Lujan
El Hospital Nuestra Señora de Lujan, es un hospital público de jurisdicción municipal de la provincia de Buenos Aires, es de nivel local y mediana complejidad.

Cuenta con una superficie de 5.500 m2 y fue creciendo, desde la inauguración del primer pabellón en el año 1899, en forma desordenada respondiendo a la demanda de servicios El Plan Maestro fue realizado por un equipo de trabajo integrado por médicos sanitaristas, arquitectos, bioingenieros y administrador para realizar un diagnóstico de las prestaciones, gestión, infraestructura y tecnología de la institución a fin de reformular el perfil dentro de la red y de acuerdo a las necesidades actuales.
Se trabajó con escenarios de corto plazo (3 años), mediano plazo (3 a 6 años), y largo plazo (más de 6 años) que establecieron un plan de inversiones en obra física, equipamiento y recursos humanos.
Se propuso una transformación importante de la estructura edilicia ya que amplía la capacidad instalada actual con una superficie construida de 5500 m2 y dotación de 105 camas, que sufrirá un incremento de su superficie a 10.900 m2 y la dotación de 129 camas.
Hospital Municipal Bernardo Houssay de Vicente Lopez
El Hospital Municipal Bernardo Houssay tiene un fuerte valor simbólico para el barrio circundante y el partido de Vicente López, como también partidos circundantes. Esta situación, la accesibilidad y calidad de las presentaciones lo constituyen como referencia en la zona norte.

El hospital fue creado el 9 de julio de 1931, y como toda institución de salud fue sufriendo constantes modificaciones, siendo la más significativa en su morfología, en el año 1968 cuando inauguraron el anexo de cuatro pisos que da a la calle Caseros.
El edificio original se encuentra ubicado sobre la calle Hipólito Irigoyen (unas de las arterias principales de la zona), y se destaca un edificio vertical sobre la calle Caseros donde se encuentran los servicios de Diagnóstico por Imágenes, Centro Quirúrgico, internación, UTI y UCO.

Posteriormente se construyó un hall de doble altura que crea un centro donde se interrelacionan todos los edificios. La Institución cuenta con 18.000 m2 cubiertos, una dotación de 126 camas, y no queda terreno libre.
En este caso el Plan Maestro tuvo los objetivos siguientes: reordenamiento de las circulaciones, remodelación del centro quirúrgico, incorporación de núcleo circulatorio vertical técnico y de escape, obras de infraestructura.

El trabajo realizado en ambos casos trató de respetar dos aspectos fundamentales de toda obra de arquitectura: el lugar, es decir en que parte de la ciudad se encuentra en relación a la centralidad de cada una de las jurisdicciones en las que esta ubicado. La tipología en relación a la organización de la planta física, en un caso con el predominio de la tipología vertical y en el hospital de Lujan la tipología pabellonal.
Se obtuvieron proyectos que trataron de respetar o recomponer la tipología original, mejorando los sistemas circulatorios y esquemas funcionales, pero con la incorporación de requerimientos que forman parte de la nueva agenda, como son toma de conciencia del ahorro energético, diseño sustentable, y criterios de humanización a fin que disminuya el impacto del ambiente hospitalario en los pacientes.

Equipo de Proyecto:
Coordinación Arq. Adrián Mendes.
Arq. Marina Mochi y Arq. Josefina Gondra.
Elvira Contreras es arquitecta: (FADU UBA) Maestrando en Administración de Sistema y Servicios de Salud, Facultad de Medicina, Universidad de Bueno Aires.
Curso de Gerencia Social para Directivos, Instituto Interamericano de Desarrollo Social (INDES), Banco Interamericano de Desarrollo (BID), Washington D.C., EE.UU.
2006/2017, Directora del Curso Planificación del Recurso Físico en Salud, Universidad de Lanús, AADAIH 2018/2021, Directora Diplomatura Gestión y Diseño de Edificios para la Salud 1 y 2 UGR, AADAIH. Titular del estudio Contreras & Asociados.



GIPHY App Key not set. Please check settings