La Diplomatura de Ingeniería Hospitalaria 2 (INHO 2) – Soluciones a las problemáticas tecnológicas y de infraestructura, es complementaria de la Diplomatura de Ingeniería Hospitalaria 1 (INHO 1) – Gestión de la Operación y los Servicios y el cursado de ambas permite a los profesionales tener una vivencia integral de la funcionalidad de una infraestructura hospitalaria.
A lo largo de las Diplomaturas destacamos una falencia que caracteriza muchos proyectos hospitalarios y se manifiesta en la discontinuidad que se produce entre el proyecto, la obra y la funcionalidad del hospital, motivada en la falta de una documentación acorde a la magnitud del proyecto desarrollado que asegure una correcta operación y un buen mantenimiento de la infraestructura hospitalaria a través de una adecuada selección y capacitación del personal profesional responsable de las mismas.
Podríamos explicar la complementariedad de ambas Diplomaturas diciendo que, mientras que en INHO 1 desarrollamos un profundo análisis de sus instalaciones, procesos e interacciones entre los sectores médicos y los operativos; en INHO 2, realizamos el camino inverso, produciendo la síntesis operativa a través del desarrollo de proyectos interrelacionados (eléctrico, termo-mecánico y de sistemas de control) que respetan los requerimientos de los procesos médicos que se realizan en el Hospital.
Desde el inicio, los participantes de INHO 2 conforman equipos de trabajo interdisciplinarios (arquitectos, bioingenieros e ingenieros) que trabajan mancomunadamente en el desarrollo de los citados proyectos sobre el esquema hospitalario y sector médico que se les hubiera asignado, con el apoyo de los docentes de cada disciplina, estableciendo consumos, potencias y características técnicas de acuerdo a normativas aplicables, seleccionando equipos, lugares de instalación, restricciones edilicias y condiciones de distribución para atender las áreas médicas.
Paralelamente al progreso de los proyectos técnicos se desarrolla el proyecto de gestión, que toma estos diseños y los vuelca a un Manual de Organización, base sobre la que se estructurarán los procesos operativos y de control operativo, a implementar a partir de la puesta en marcha del hospital. El objetivo propuesto es contar con un esquema de trabajo que, alineado con la misión, visión y valores establecidas por la dirección, permita garantizar un flujo apropiado de recursos y un adecuado organigrama operativo con profesionales y personal capacitado para estar a la altura del equipamiento instalado.
Desarrollo del Trabajo Integrador Final
Arqs. Agustín Lerro y Daiana Cora, Ing. Diego Luque y Bioing. Agostina Rispolo
Como muestra de la actividad de la Diplomatura de Ingeniería Hospitalaria 2, se selecciona el Trabajo Integrador Final, desarrollado por el equipo conformado por los Arqs. Agustín Lerro y Daiana Cora, el Ing. Diego Luque y la Bioing. Agostina Rispolo, quienes conformaron una asociación ficticia ADDA – Infraestructura y Gestión en Salud, para el desarrollo de los proyectos de la Diplomatura, con la coordinación del Ing. Armando Negrotti.y el apoyo de los docentes de cada especialidad Ing. Atilio Ricca (Eléctrico), Arq. Carlos López (Termomecánico), Eng. Bernardo Kaplan (BMS).
Este trabajo se basó en incorporar distintas instalaciones a un Efector de Salud, como Instalación Eléctrica y BMS integral del Efector asignado, diseño de la Instalación Termomecánica del Centro Quirúrgico como servicio seleccionado y la determinación de equipos constitutivos, y columna estructural del Manual de Gestión del Efector.
Proyecto Manual de Organización
Este proyecto fue el primero en comenzar a desarrollar y el último en concluir, ya que es transversal a todos los módulos cursados.
Con el propósito de dar a conocer la forma de organización, objetivos, funciones y niveles de responsabilidad del Departamento de Mantenimiento del edificio ADDA, se incorpora en él la información del edificio, con sus características de diseño y constructivas, las memorias y especificaciones de los equipos de infraestructura; la estructura organizacional general; la organización del Departamento de Mantenimiento con los puestos de trabajo; y el Centro de Atención al Usuario.

Proyecto Eléctrico
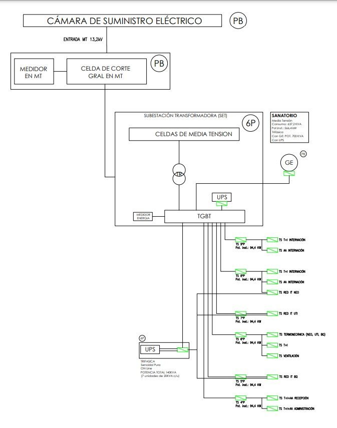
A partir de parámetros de diseño, se realizaron los cálculos de potencia requerida en cada piso y, de esta manera, seleccionar el tipo de suministro para cada propietario. Para cada uno de ellos, se definió el tipo de alimentación (trifásica o monofásica), el tipo de suministro (baja o media tensión, con el diseño de la SET), el consumo y si requería grupo electrógeno (definiendo su potencia y elección de equipo). Además, se determinó el baricentro de carga para instalar la sala eléctrica principal.

Proyecto Termomecánico
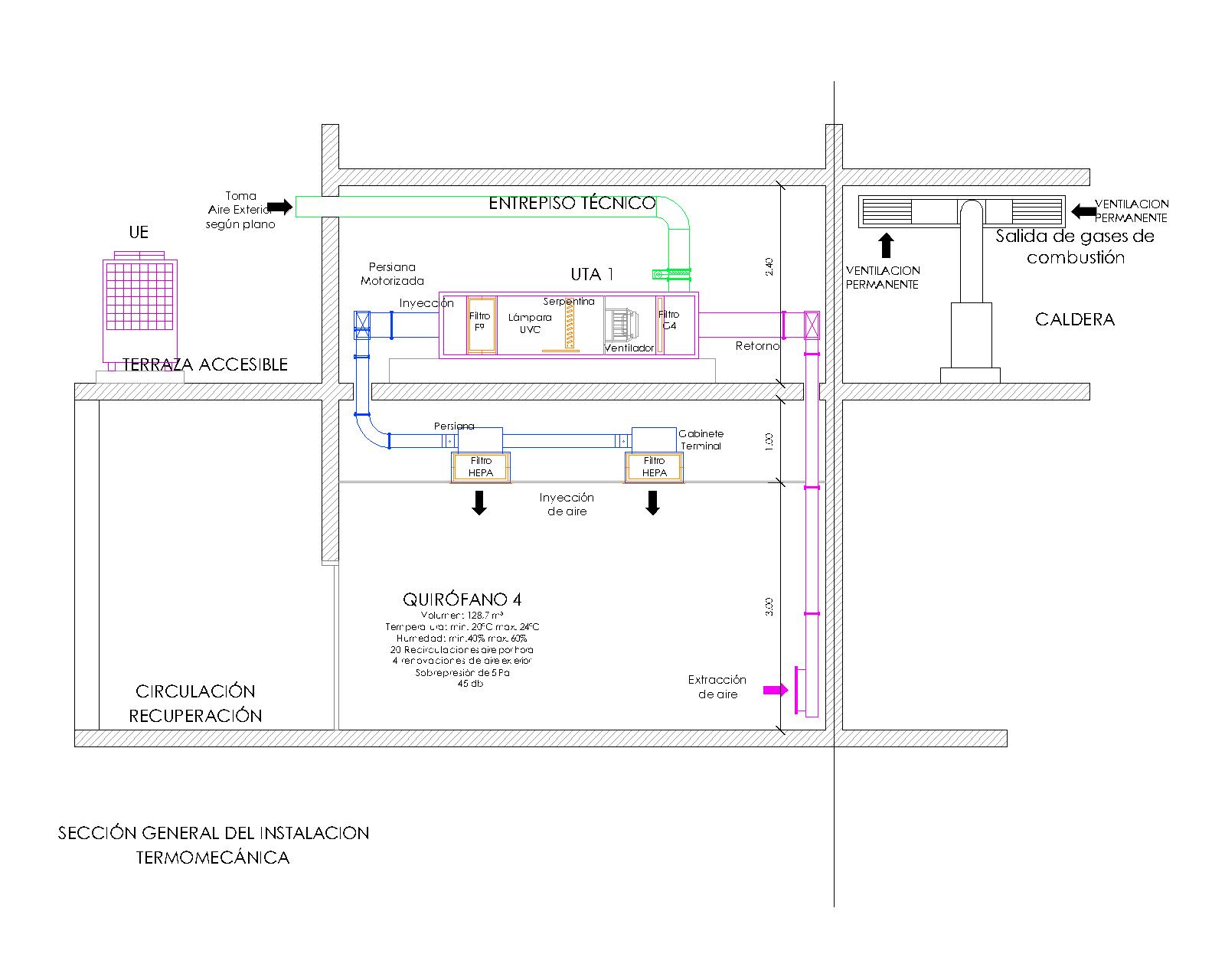
Dicho proyecto se basó en acondicionar el ambiente del Centro Quirúrgico en condiciones específicas de temperatura, humedad y calidad de filtrado de aire. A partir de una estrategia de zonificación y acondicionamiento según norma IRAM 80400, se procedió a la selección de UTA’s, con calefacción por agua caliente proveniente de caldera y refrigeración proveniente de planta de generación de agua fría (chiller). De acuerdo con dimensiones y requerimientos de cada local, se calcularon los caudales necesarios, se determinaron cascadas de presiones, necesidades de filtrado con elección de filtros, dimensiones de conductos y elección de rejas y difusores.

Al ubicar los equipos de HVAC en el Entrepiso Técnico, se propuso climatizar este local con un forzador de aire para que se desempeñe como toma de aire exterior para cada UTA.

Proyecto BMS
El objetivo de este trabajo fue implementar un sistema de control BMS (Building Management System) que vinculara las instalaciones eléctricas y la instalación termomecánica del Centro Quirúrgico del edificio ADDA.
Para la Instalación Eléctrica se contempló un sistema de control independiente y autónomo para cada propietario (4 TCC), que incluye un tablero de control principal con el controlador máster, el cual supervisará los controladores secundarios, atendiendo el equipamiento de cada propietario. Estos 4 TCC se unen bajo una red de datos BACNET TCP/IP, que mediante un servidor, permite la gestión integral del edificio a través del sistema de control BMS.
Para el cumplimiento del proyecto, se elaboró una planilla de puntos de control donde se pueden identificar claramente los puntos físicos y virtuales.

En cuanto a la Instalación Termomecánica, se disponen dos tableros de control TCC en la sala de máquinas del Centro Quirúrgico, próximos a los tableros de FM HVAC, donde se encuentran los controladores de campo con sus módulos de expansión. Así mismo, la operación, monitoreo y comunicación al sistema BMS se realiza a través del protocolo BACNET TCP/IP.

PALABRAS FINALES
A partir de lo desarrollado durante los meses de cursada y estudio, se adquirieron herramientas y conocimientos para el desarrollo de estos proyectos.
Sin embargo, también surgieron dificultades, el progreso de los proyectos exigía un entendimiento integral de los temas desarrollados a lo largo de ambas Diplomaturas. Estas dificultades desafiaron al grupo conformado al trabajo conjunto, lo que se entendió como uno de los objetivos más importantes en alcanzar: el trabajo en equipo.
Si bien esta necesidad es una constante en todos los ámbitos, parecería que, en las Instituciones de Salud, por sus características, el desarrollo de cualquier proyecto de cierta magnitud siempre será multidisciplinario e implicará un coordinado esfuerzo de conjunto, bajo la premisa de comprender que siempre se trata de compromiso, comunicación y organización.
La decisión de haber realizado la diplomatura fue fundamental en nuestro desarrollo del conocimiento de la ingeniería y arquitectura hospitalaria. Todo lo brindado por el equipo de profesionales, ha generado en cada uno de nosotros, una confirmación de saberes y actividades que son vitales para comprender la construcción y funcionabilidad de un establecimiento de salud.
Daiana Cora.es arquitecta UNLP 2018. Residencia de Arquitectura Hospitalaria GCBA, 2018-2021. Jefa de residentes 2021-2022 e Instructora 2022-actualidad. Formación de posgrado Diseño del Área Quirúrgica, FAU UNLP 2022; Sustentabilidad de Espacios para la Salud, AADAIH 2021; e Ingeniería Hospitalaria I y II, AADAIH 2022-2023.
Agustín Hernán Lerro es arquitecto – UNR 2011, Profesor en Arquitectura, FAPYD 2016, Docente de grado en Materialidad I FAPYD- UNR; Diplomado Universitario en Evaluación de Calidad de las Organizaciones de Salud en ITAES 2020; Infraestructura Física y tecnología en Salud – ISALUD 2021; e Ingeniería Hospitalaria I y II – UGR y AADAIH 2022-2023.
Diego Fernando Luque es ingeniero mecánico (UTN 2003). Especialista en Ingeniería Gerencial (U.T.N. Reg. BA, 2003 a 2005). Especialista en Gestión de Proyectos (UCEMA 2017 a 2018). Project Management Professional (PMP) matrícula N°: 2694099, 2019 Diplomatura en Ingeniería Hospitalaria I y II, AADAIH 2022-2023. Asesor Termomecánico para las Naciones Unidas en Argentina – UNOPS. Project Manager HVAC en INVAP.
Agostina Rispolo es bioingeniería (Universidad Nacional de Entre Ríos). Dirigió y participó de distintos departamentos de Bioingeniería en instituciones de salud en la Ciudad de Santa Fe y Rosario. Actualmente como único responsable a cargo del equipamiento médico de tres instituciones de salud privadas en la ciudad de Santa fe y socia de una empresa de diseño y desarrollo de infraestructura en salud. Formación a nivel de posgrado en Ingeniería Hospitalaria I y II – UGR y AADAIH 2022-2023.
Contacto:



GIPHY App Key not set. Please check settings